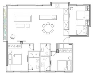
以色列BZ北欧风格平层住宅 平面图

住宅设计,公寓设计,平层住宅,房屋改造,家居设计,家装设计,北欧风住宅