阿根廷·The Nim Bar啤酒酒吧设计
从一开始,该项目就必须吸引典型啤酒吧的审美分离。挑战在于创建与鸡尾酒吧相关联的新美学世界,同时又要忘记令人印象深刻的30个水龙头品牌,强调了布宜诺斯艾利斯最大的啤酒吧的想法。该概念包含了与这些特征的酒吧所不具备的回忆相背离的元素。

为此,转到概念化的概念非常重要,该概念的出发点是根据非常传统的原理性主义者风格的“可能的影响”在美国的影响下,非常传统的原型理论的“可能影响”下的地块组成。美国和中国传统室内设计元素中的理性主义风格,这种想法由两种密度的木制网眼组成,即密闭的和敞开的,以橡木色调产生多种深度。


这些绝对是揭开它们缝隙之间奥秘的面纱和筛子。它像国际象棋的组织由开放的网格组成。具有相同组成系统的另一种材料是其几个壁中的石灰石。外立面上的交流策略提出了一种表现主义和一种与其内部相似的系统。由于这些都是高密度的材料和合成物,因此我们选择将它们与带有中性图案的墙壁进行对比,以允许对话而不是设计之间的竞争。


顶层组织分为两个部分,在宽敞的起居室空间中显示出其最独特的一面。这些细分为可移动的面板,这些面板向上摆动以形成一个大而独特的空间,根据方便,该空间由网状天花板覆盖。它的徽标和同型符号之间的交流模仿了由情节和背景构成的同一系统,该情节和背景通过凤凰城表达。

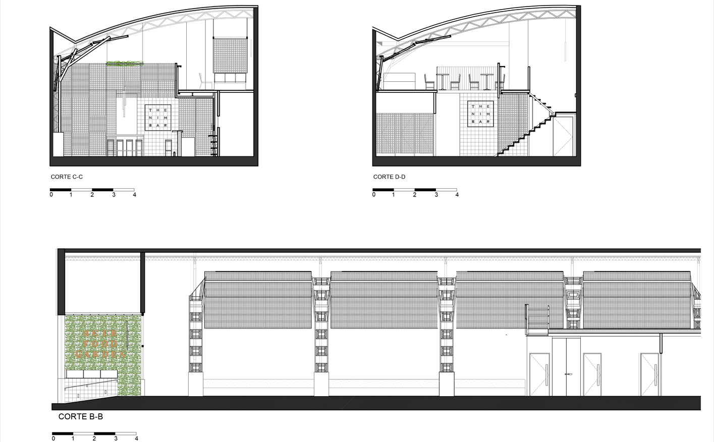
平、剖面图:

项目空间信息:
- 空间名称:The Nim Bar啤酒酒吧
- 空间类型:餐饮空间、酒吧设计、啤酒酒吧
- 空间地址:阿根廷 布宜诺斯艾利斯
- 设计公司:Hitzig Militello arquitectos
- 空间面积:392平方米
- 空间主材:木材、石灰石、瓷砖、钢材、壁纸
- 空间摄影:Federico Kulekdjian

