南京·“失物招领Lost&Found×三十六鸥36ou”集合店 / MOU
集合店地址:南京市玄武区碑亭巷62号美术大厦1-2层
项目背景与城市脉络
2022年初,工作室受邀为三家生活方式品牌共同设计位于南京的集合店铺。两层600平方米左右的面积,经过商定,一层为户外生活方式品牌ABC CAMPING COUNTRY,二层则为失物招领×三十六鸥生活提案店。

场地选址于南京碑亭巷62号美术大厦,这里是长江路和碑亭巷的交汇处。“一条长江路,半部南京史”,不论是六朝还是民国时期,这两条路都见证了南京历史上的兴衰繁荣。悠久的历史必然会在不同时期塑造出城市的不同肌理,我们希望通过此次改造设计,能够捕捉城市的脉络与肌理,让这里不但成为包容各种商品的店铺,也能帮助街道和建筑再次焕发活力,成为居民和来往的顾客聚集、交流的场所。
▼区位图:


思考街道与店铺的关系
碑亭巷是一条南北走向不足千米,面宽狭窄的街道,中间设有机动车单行通道和自行车道,道路两侧是人行步道,历史的沉积加上窄街区的舒适尺度让这里如今成为烟火气十足巷子。美术大厦这栋建筑物坐东朝西,主入口大面积的窗户面向街道。对面是第一个国家美术馆,由中国第一代建筑师杨廷宝先生设计建造,透过低矮的围墙我们能看到美术馆的建筑和院子。西侧并没有近距离的高大建筑物作为遮挡,因此夏天西晒的问题不得不需要正面的去面对,我们还注意到街道两侧的大部分建筑物紧邻着人行步道,一些店铺一旦排起长队势必会挤占人行道,这种情况不但影响了道路的交通而且雨天没有遮蔽则更为狼狈。关于店铺与街道关系的思考也由此展开。

如果能给建筑安装上大屋檐既能解决两层空间的西晒问题,一层还可以为来往的顾客和居民提供排队避雨的场所。显然向外部做加法是行不通的,只能把问题转移到内部思考。传统古建筑坡屋顶出挑的檐廊给我们提供了一个很好的思路,因此两层空间同时向内退让形成对外开放的檐廊方案就此确定。

既是街道,也是客厅
第一次去场地勘查,一层中央盘踞着巨大的楼梯,格外显眼。空间也因此被切割成前后两大片区。后面的片区完全被楼梯所遮挡。一层的空间业主希望能够满足接近日常的咖啡、服装、户外装备的展陈和零售等功能。随后我们决定拆除楼梯,设置新的楼梯连接两层空间。新的楼梯以最小体积和视觉遮挡被设置在入口最左侧的位置,以便创造出行人从街道上就可以一眼洞穿的城市客厅。

展陈布置主要利用了墙面空间,避免造成中间区域视觉上的障碍,我们不对所有的功能设限,将中间核心区域的灵活使用机制交给店铺的经营者。内部空间和外部檐廊之间通过玻璃折叠门系统的启阖,与外部街道融为一体,欢迎任何人的进入,向城市和街道释放出一种善意与友好。

日常与平等
一个城市的街巷里让人印象深刻的可能就是每天都热气腾腾的包子店,师傅们娴熟忙碌的身影总是会给人带来活力。一杯咖啡需要经过多种工序制作完成最后送到顾客手中。我们也想将这些动作面向街道,让道路上来往的行人也能注意到这个完整过程。因此决定在两柱之间置入贯穿于内外的“亭”,作为同时对内和街道的窗口,满足日常的咖啡操作与售卖。咖啡“亭”内外的地坪高度的设置是一致的,我们希望店员和顾客之间的视线建立在同一个高度上。

一层地坪使用混凝土砖块铺贴覆盖在原始水泥地面上,一直延伸至室外与人行道相接,来往的行人和顾客可以坐在用砖块垒起来的路牙子上攀谈。凸起的部分则成为展台和长凳。外立面改造采取了低干预、和而不同的策略。大部分店铺都想要追求高大的门头,这次我们却主动将立面和门头高度同时降低至离地2.6米,被压低后形成的特殊视线关系,成为檐廊下喝咖啡,休闲的人们的庇护所,和对面的国立美术陈列馆保持着相对平等的对话视线。

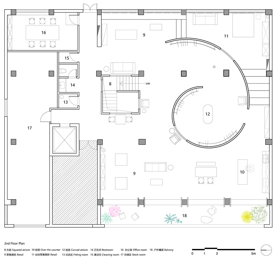
方庭与曲庭
二层的空间客户希望能满足家具、服饰、家居选品的展陈与售卖;日常办公;洽谈;仓储等功能,以及能够应对活动布展的灵活性。一层空间具备高度的透明性,欢迎人们走进来,那么到了二层我们非常希望人们能深入的走进去,并带着继续探索的心情。场地是由梁柱撑起的制式空间,我们需要做的第一步就是打破这种初始状态下的均质,创造出让人具有探索性,慢慢逛的店铺印象。

楼梯洞口上方本身就是空出来无法涉足利用的区域,与其做一圈常规高度的护栏,不如把护栏转换为到顶的墙体,因为墙体在分割空间的同时还能作为视觉的遮掩,于是方庭的雏形得以形成。但是在大而空的场地内只有一个方庭还不足以营造出复杂性和趣味性,况且方庭我们只能围绕在它的四周,不能真正意义上的身在其中,于是思考收纳进另一个抽象化的庭院。

但是这个庭又将是什么样的庭,如何的抽象才能在满足功能的同时和方庭共同组织起新的空间系统。最简单的切入方式还是以基本几何形来建构,最先觉得圆形和方形的组合是较为合适的,不过圆形又难免会让人觉得古典而具有象征性。我们希望营造的场所不带有任何的风格和个人主义倾向,不中不西,能够含蓄包容各种产品和来此的各色人等。因此我们将这个圆剪开一个口子然后拉拽成类似镜像后的“6”字形态,与方庭之间拉开一定的距离,并在其内部又开了一个门洞,通过半高的曲形墙体围合成,我们将之称为曲庭。其他的对应功能也在两庭格局的基础上被一一填入其中。就这样在两庭之间形成了或宽或窄,或直或曲的多条路径。

失物招领的产品主要是家具、家居类别,而三十六鸥的产品是以服饰、生活用品为主。我们需要思考两个品牌一大一小的产品如何布局规划放在同一个空间里。如果两个品牌全部都独立展陈,虽然看似直观但略为单薄无趣。因此我们选择将两个品牌的产品相互融合,这样所营造出的居家生活也更为生动饱满。失物招领的家具有客厅、餐厅、卧室、书房等应用于不同家庭场景类型的,如果场景展陈过于集中,或许就会成为常规家庭房间功能的复制堆叠,不如借用交通路径分而化之。

曲庭内侧的墙体用于服装的展陈,宛如一个巨大的半开放衣帽间。曲庭外围临近街道一侧,我们选择将这里作为一个灵活性的功能区,平时可以作为LDK生活场景展陈,也可以应对各种活动和展览的举办。

风景与身体
从楼梯上到二层,顾客探索的路径具有选择性和迷路性,可以根据自己的感觉和喜好而定。方庭和曲庭的墙壁上没有任何的装饰,却有着让人感到意外且具有穿透性的洞口,空气和阳光也能够自然流动,我们希望透过洞口所窥探到的风景,能够驱使身体漫游其中,偶遇到自己心仪的物品。
在曲庭的东南角,我们将平坦的地势向上隆起,形成一段台地。台地匍匐在这个角落,相对具有一些私密性,未来可以作为卧室的场景展示。在台地两个方向上的进入方式虽然都利用了台阶,但是为了能给身体和心理带来节奏上的变化,我们设置了不同高度和踏数的台阶。站在台地上,也将带来特殊的视野。

场地东侧的窗外是学校的建筑物,几乎要逼近窗边,丝毫没有美感,同时还分散了内部的注意力。面对风景,佳则收之,俗则屏之。翠玲珑的花窗,确实是点睛之笔。我们也试图通过构建一层花窗,让两者之间保持着暧昧的距离感,花窗也给空间增加的序列感。

靠近西侧原来的窗户临近街道,隔着玻璃可以看到城市的街景,内退后形成的檐廊,可以让来此的人每个人都能走出去感受到城市和自然的风景。在这个开放包容的场地内,我们希望能给大家带来可行、可望、可游的乐趣,期待未来的多种生活形态在此发生。


▼平面图:

▼剖面图:

项目空间信息:
- 空间名称:“失物招领Lost&Found×三十六鸥36ou”集合店
- 空间类型:商业空间、零售空间、品牌集合店、家具店
- 空间地址:南京市玄武区碑亭巷62号美术大厦1-2层
- 设计公司:MOU建筑工社
- 主创设计:吴状
- 设计团队:付仕玉、陈静、李逸雯
- 施工单位:南京柏泉装饰工程有限公司
- 灯光设计:维光照明
- 地坪配合:南京邦喜建材有限公司
- 空间面积:600平方米
- 空间主材:混凝土砖、水泥、石头、柳桉木胶合板
- 摄影版权:吴昂
- 项目客户:ABC CAMPING COUNTRY、失物招领、三十六鸥
编辑版权©️SOHO设计区(sohodd.com),禁止以“SOHO设计区”编辑版本进行任何形式转载,如转载请注明转自“SOHO设计区网站”。

