旧金山·Radhaus巴伐利亚啤酒吧餐厅
Radhaus是一个啤酒酒吧和巴伐利亚餐厅,位于旧金山湾区历史悠久的梅森堡艺术和文化中心,该中心曾经是一个军事基地。该项目是今年Dezeen奖项的入围名单,涉及陆军海洋机械车间的翻新,并展示了该社区正在进行的复兴。

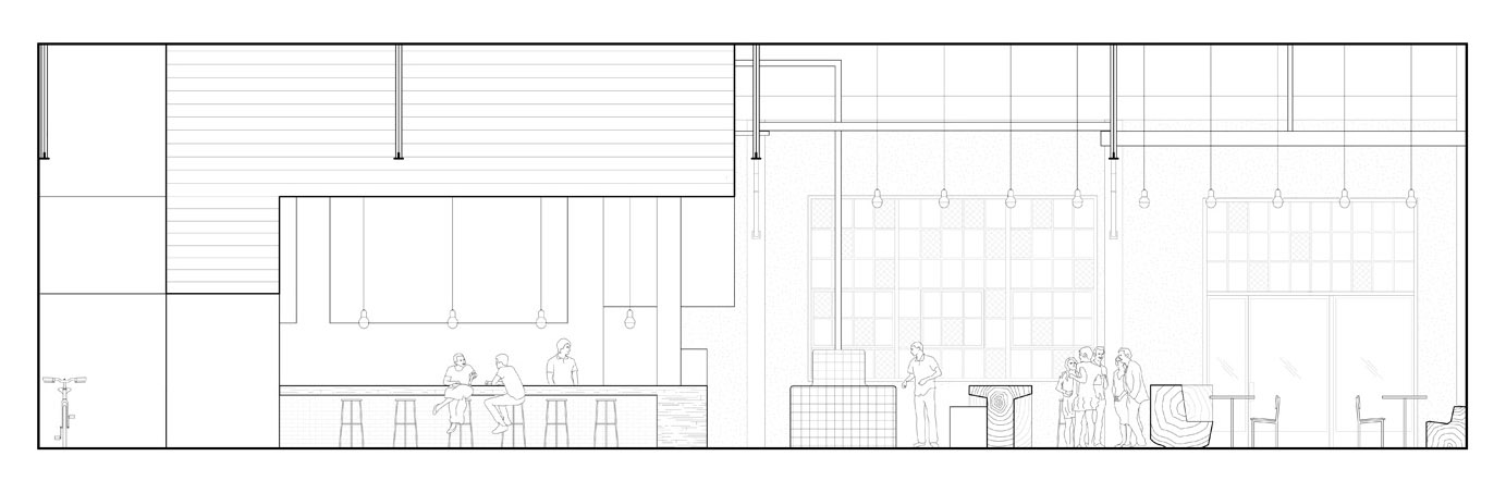
伯克利工作室Envelope A + D设计了这间工业风餐厅,设计保留了空间中的许多现有细节,包括外露的钢制屋顶桁架,它们被涂成亮白色以匹配墙壁。地板上现有的抛光混凝土尽可能保留,然后与新的骨料搭配,形成斑驳的效果。吧台和座位长椅,这些都是在西山脉(Western Sierras)从风沙落下的黄松(Ponderosa Pines)中拯救出来的。这些长凳由树木专家Evan Shiveley精心打造。



啤酒厅的中心标有这个所谓的“啤酒风琴”,一种用白色瓷砖覆盖的结构,用于为啤酒桶提供冷藏。一系列水龙头,旨在改变菜单产品,排列结构。手柄由找到的物体制成,包括螺丝刀,抽屉旋钮和管道。这个俏皮的元素遵循流氓风格,这是一种利用已发现物体的美学。

平、立面图:

项目空间信息:
- 空间名称:Radhaus巴伐利亚啤酒吧餐厅
- 空间类型:餐饮空间、工业风餐厅、酒吧餐厅、厂房改造
- 空间地址:美国 旧金山
- 设计公司:Envelope A + D
- 空间主材:钢材、黄松木材、瓷砖、抛光混凝土自流平、乳胶漆
- 空间摄影:Matthew Millman

