上海·“INDEFINITELY BY 6无边界物证室”潮流中古店
INDEFINITELY BY 6 POP UP STORE选址位于上海市新乐路158号,上海的潮流聚集地。SPACE 6的主理人找到我们时,明确表示了不间歇有活动举办使得空间无需拥有任何自己的色彩,希望成为一个“无定义”的存在。

由于INDEFINITELY与客观的商业空间不同,没有明确的界定与商品,因此我们更愿意称它为“容器”,由每次的主题而演绎。作为SPACE 6首个与大众见面的项目,在INDEFINITELY中登场的潮流证物室#The Evidence Room#主题的名人中古POP UP STORE将过百件横跨10年的潮流证物全部带回众人视野。

空间内保留了水泥原始的质感,将目光聚焦在空间内唯一的装置上。设计师对货架的逻辑梳理赋予了传统展示架新的定义,几乎囊括了商业展示的所有功能,货架的排布也可以根据商品需求而变化,单个的货架变化共有三种,多个的可根据需求随意组合。于商品,它是表达空间的载体,于空间,它是不可或缺的内核。



空间内的展示墙以box的形式呈现,极其统一的阵列成为了视觉焦点。柜子内放置的灯光营造出空间的未来感。百年内各式的中古物品都同时在INDEFINITELY内展示,有很多都是主理人的珍藏,证词上描述着每件物品曾经或正在发生的故事,这些故事重新赋予了物品更厚重的质感,而它们,也在INDEFINITELY内熠熠生辉。

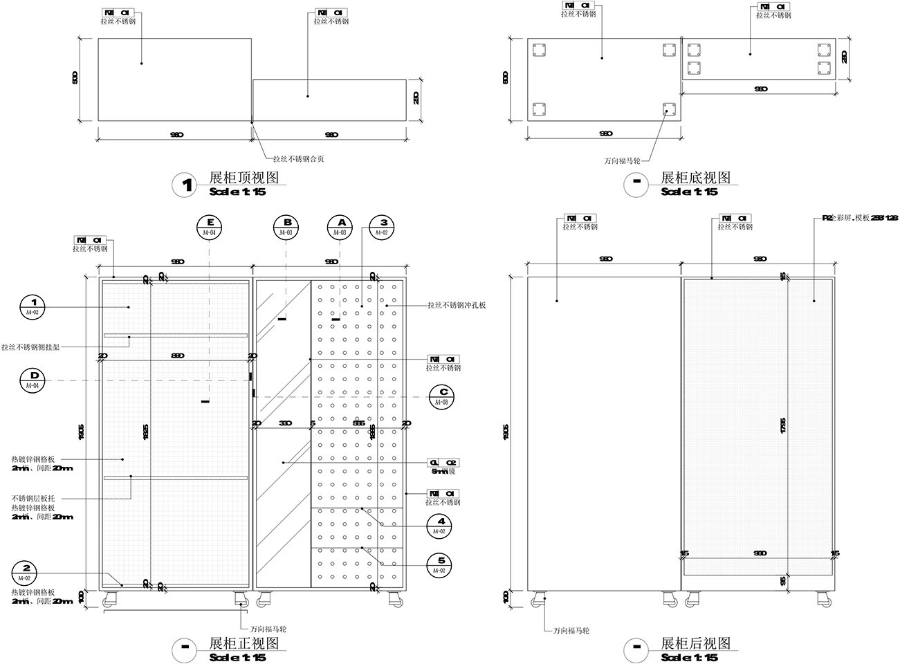
平、立面图:

项目空间信息:
- 空间名称:INDEFINITELY BY 6 POP UP STORE
- 空间类型:商业空间、工业风店铺、买手店、潮流店、中古店
- 空间地址:上海市徐汇区新乐路158-3
- 设计公司:或者设计
- 施工单位:言润装饰有限公司
- 空间面积:105平方米
- 空间主材:拉丝不锈钢、混凝土自流平、混凝土涂料、玻璃
- 空间摄影:INDEFINITELY BY 6 POP UP STORE、或者设计

