桂林阳朔·“GEEMU积木”多业态融合度假酒店
GEEMU积木酒店是倡导亲子互动、在地文化体验和多业态融合的小型精品度假社区,位于广西桂林阳朔,由一座毛坯民居改造而成。项目探索了当下乡村最为普遍的快速自建房,如何被重新赋予建筑和社区意义。2016年初,阳朔高铁站通车,兴坪成为华南短途度假热门目的地,当地酒店产业如雨后春笋,杂芜的农家乐聚落迅速形成乡间新的日常。村民们拆掉老屋在宅基地上争相盖起高大的混凝土新房,满心欢喜地等候外地人租下来开设酒店——就像许多村庄一样,兴坪古宅依偎、遗世独立的日子已成过往。

积木的前身就是该状态下的产物。我们初次到现场时,面对这处毫无故事、低效无趣的空间,也一时语塞。基地西南方向视野相对开阔,但北侧紧贴山体,甚至有些逼仄,建筑的集中大体量相比周围低矮散落的土砖民居也有些格格不入。
▽改造前:

改造充分接纳现实语境,并寻求一种新的介入与共存关系。现场条件不稳定,用地范围和权属关系一直变化,因此设计根据相对确定的要素从内向外做出回应,加上现状结构限制,建筑原有主体部分继续承载主要居住功能,新的功能需求则以小体量的方式在原有体量上外溢,对话周边民居的同时削减了原有体量。建筑主体立面为水刷石,小体块则沿用当地老房子纸筋灰剥落后的土砖色加以区分强化。

和很多其他面积冗余的自建房一样,原建筑仅首层为村民自住使用,但展现出的通透性令人印象深刻。这源于当地人对高品质居住空间的理解:充分的层高、宽敞的跨度、真材实料的混凝土框架,过大使用面积带来的低效含糊的功能划分也是奢侈感的体现。项目首层延续了室内外的模糊与通透,将前台、餐厅等服务性功能集中在西侧,最大化呈现完整开放的公共空间,设置了剧场、阅览等多种功能,并通过前厅移门和4X3米的大玻璃推拉门开合,为多种活动和未来运营提供了包容性。

首层以上现有的承重砖墙可改动的余地不大,为了房间类型的丰富度,我们把中间一户均分并划到两侧,为儿童留出了半独立的卧室和玩耍空间,形成主次空间渗透的亲子居住体验。室内和环境丰富的相处关系,则通过墙体、玻璃、玻璃砖等材质组合来塑造。

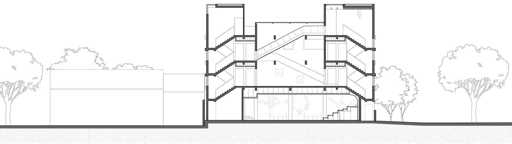
垂直方向增加中庭进行联系,也改变了平面的平铺直叙。原本黑暗的走廊变成空间的核心,在光线洒下来的那一刻所有人都很兴奋:一个竖向上毫无特质的建筑,终于展现了新的可能。借助两组长滑梯,中庭被组织成另一个动态活动中心,孩子和大人都可以快速穿梭在2-4层间,“楼梯间-走廊”构成的固定关系被打破。几个空间的划分动作同时吻合结构体系的加固原则,中间户的分割和中筒的置入,都是对结构整体性的强化。


积木并非只是提供标准服务的“住”,而在一开始便被想象成一种介于酒店和幼儿园之间的独特场景。同样,积木不止于儿童,它希望用空间激发好奇心和社群交互,传递明晰的态度和细节,描绘属于成人和孩童各自的玩乐和审美趣味。

平、立、剖面图:

项目空间信息:
- 空间名称:“GEEMU积木”多业态融合度假酒店
- 空间类型:酒店设计、主题酒店、度假酒店、建筑改造设计、乡村酒店
- 空间地址:广西省桂林阳朔兴坪镇
- 设计公司:梓集
- 占地面积:1000平方米
- 建筑面积:1194平方米
- 空间主材:水刷石、水磨石、木材、木地板、混凝土、玻璃砖、冲孔钢板、白色乳胶漆
- 建筑摄影:张超、刘景媛、田阳

