日本大阪·9h nine hours胶囊旅馆
酒店地址:日本大阪市难波Nambanaka3楼2-10-70号(难波车站附近)
该项目为胶囊旅馆建立了新的标准。这种叫做胶囊旅馆的商业模式最早始于日本,专门提供便宜的住宿,长期以来人们一直忽略了其住宿空间的舒适性。因此,设计师设计了一种全新的胶囊旅馆形式,重新塑造了它的传统形象并追求功能性,同时提供了丰富的住宿体验。


设计师将胶囊旅馆的4个阶段重新配置为4个场景,包括“接待区”,“序幕走廊”,“卫生休息室”和“卧榻”空间。通过为每种功能选择最合适的颜色,材料和照明,我们实现了功能丰富的酒店,它也为酒店住宿带来了许多乐趣-从“热情”到“兴奋”,“放松”和“终极睡眠体验”。

具体而言,在室内设计中,使潮湿区域更适合居住,以减少停机时间带来的压力,例如在淋浴和入睡之间或准备和出行之间花费的时间。为此,以前都位于单独空间中的储物柜,洗手区,淋浴间和卫生间均以单一顺序连接在一起,并在该连接空间中加入了休息室功能,以创建宽敞的“卫生休息室”。



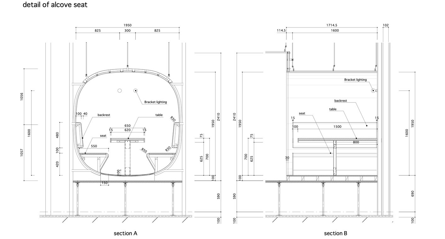
平面、节点图:

项目空间信息:
- 空间名称:9h nine hours胶囊旅馆
- 空间类型:酒店设计、品牌酒店、青年旅舍、胶囊酒店
- 空间地址:日本大阪市难波Nambanaka3楼2-10-70号(难波车站附近)
- 设计公司:Naruse Inokuma Architects
- 空间面积:994平方米
- 空间主材:红铜、欧松板、瓷砖、地坪漆、烤漆玻璃、镜面、涂料
- 空间摄影:Nacása & Partners

