杭州·“MOON摄影工作室”复合空间
摄影工作室地址:杭州市滨江区东冠三路5号
MOON由摄影师/金浩森和文子/于2009年创立,以摄影的视角分享生活的点滴,“记录你的美好”。新工作室选址杭州滨江,为一个500㎡的空间,由MOON DRINK、金浩森摄影学院、MOON摄影工作室三部分组成。

原建筑为一个层高9m的钢结构,彩色压型瓦作为表皮的建筑体,一层为6m*16m的长方形空间,二层为16m*25m的方形空间,如何在这个7字形空间里呈现MOON的专属形象成为此案的一个重要课题。镜头作为通道,折射物质空间,经过层层过滤,形成光学影像。

本案以相机为出发点搭建整个空间形态。同时我们提出三个问题作为核心设计逻辑:1、如何形成高辨识度的视觉形象与记忆点?2、如何展现当下的审美标准与品牌特性?3、如何控制建造成本同时呈现强烈的质感?夜晚从外部观察,整个一层成为一个透明的发光体,使建筑呈现悬浮的状态,营造出具有强烈记忆点的视觉效果。

空间构思从镜头、快门、相机皮腔出发作为三大基本样式,以此展开延伸,将6m*16m的体块部分作3层划分,依次为:MOON DRINK; 摄影学院;摄影工作室。MOON DRINK区域以大面积的铝板与玻璃作为主要材质以获得极具现代感的空间质感,形成整个品牌的第一视觉体验。

阶梯作为连接三层空间的主要路径,承担着三维坐标轴的角色。长方体块的直向运动呈现阶梯的连续状态,在这个纵向的空间里,我们设计了一个镜头状的圆形窗,使这个纵向路径有了横向的视线,同时镜头的形式给窗户的功能带来窥视感,形成趣味性的第二空间体验。

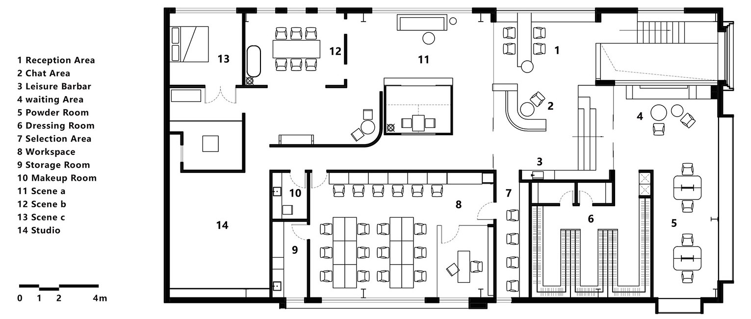
MOON摄影工作室部分,去除了多余的造型,留下一个纯白的干净空间,给人以放松感,在满足功能需求下,屋顶面切割出长条形的天窗,计算完比例后,在接待区部分增加白色格栅以过滤光线,阳光透过格栅游走于纯白的墙面,使三维的空间有了一份时间的感知,给原本的物质空间增加了一份诗意。

空间分析图:
平面图:

项目空间信息:
- 空间名称:“MOON摄影工作室”复合空间
- 空间类型:商业空间、复合空间、摄影工作室
- 空间地址:杭州市滨江区东冠三路5号
- 设计公司:偏离设计工作室
- 施工单位:欧来艺(杭州)装饰有限公司
- 空间面积:500平方米
- 空间主材:铝板、水磨石、黄铜、亚克力、渐变玻璃、白色乳胶漆
- 空间摄影:邵炜亮
- 项目客户:杭州文森文化创意有限公司
编辑版权©️SOHO设计区(sohodd.com),禁止以“SOHO设计区”编辑版本进行任何形式转载,如转载请注明转自“SOHO设计区网站”。

