河南信阳·“向上健身”&“Day1普拉提”健身空间设计 / WDS
健身房地址:河南省信阳市平桥区新七大道万达广场阳光里4F
项目位于河南信阳万达综合商圈,作为万达集团在豫南的首次商业探索,商圈的整体业态都较为年轻、创新。WDS DESIGN在接到项目之初,就一直在思考健身与空间两者之间的平衡关系。经过反复讨论,设计师决定以“线条”作为切入点,将人体的“自然”线条与空间的“人为”线条予以结合和延伸,通过直线与曲线的组合和排列手法对空间的功能需求进行重建,以多维度的线条组合方式打造健身空间新体验。由于两个场馆的主要功能不同,对于空间的设计要求也就会存在差别。综合体能馆更倾向于建立一种动感、活力的积极力量;普拉提练习馆则需要学员处于一种专注状态,从周边嘈杂的商圈业态中放松身体,全心专注于普拉提的正向练习。


作为一个完整的项目体,为了保持两个场馆在外观上的协调统一,设计师提取品牌LOGO的三角形元素进行了不同尺度的变形。通过这种两个钝角为一组的点位变化,让两个场馆的门头造型产生了波纹般的曲线,仿佛人体柔美的曲线,将两个位置上相对独立的场馆进行了品牌同一性的连结。


整体综合训练馆采用灰色和黄色为主色调,使用中灰色水泥纤维板为墙面主材,搭配原色拉丝不锈钢和黄色亚克力、玻璃,使每个来到场馆的人都能被积极、动感的情绪渲染。前台采用了白色石材与黄色亚克力结合的高低台形式,背景墙上的锡纸细节将大块的墙体进行了碎块化处理。
综合体能馆天花悬挂的曲线造型装置,连接了场地中的三根柱子,对应下方整个空间里核心训练区的位置,作为整个空间中的视觉主角,强调了体能训练中核心力量训练的重要性。


休息区吧台的黄色亚克力和原色不锈钢作为桌架,台面是黄色玻璃。


格斗区域墙面的复古灯泡造型字“FIGHT”,在灰色水泥纤维板的墙面上十分亮眼。

镜面墙上特殊设计的灯带和LOGO广告字,提升空间辨识度的同时,通过反射放大空间体量。

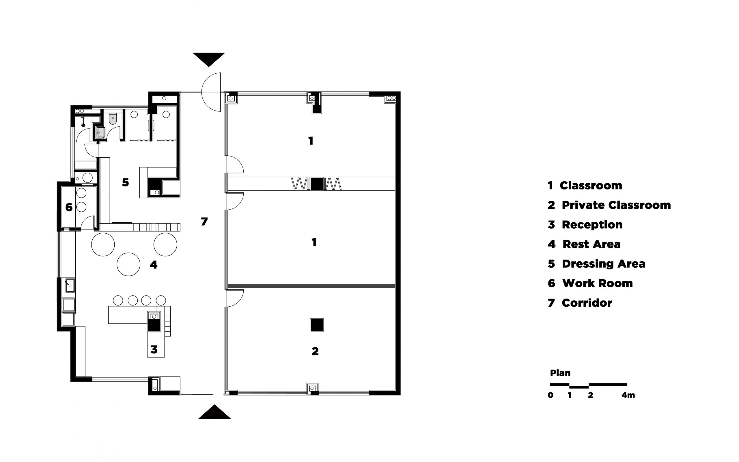
普拉提练习馆在设计之初就摒弃了各种有色元素的介入,色彩是用来调动情绪的。普拉提作为一项需要参与者极其专注的运动,首先应该做到的就是让整个空间氛围处于一种“平淡如水”的状态,以帮助学员更快速地集中注意力投入到练习中去。前台部分采用白色石材与木饰面、水泥纤维板相互融合的方式,在天花部分吊挂的白色金属圆环,象征了普拉提训练的正向和包容。




前台区的洞洞板造型,可以在收纳器材的同时起到展示作用。

表面贴附白色渐变膜的中央走廊隔断玻璃,把公共区域、团课练习教室和私教教室进行分割的同时,也帮助练习者更加专注于眼前的普拉提训练。铺设木地板的两间训练教室中间,安装了可折叠隔断移门,可以满足不同的训练对于场地的需求。

因为普拉提训练的特殊性,学员经常会面朝天花板,因此传统的灯光布置方式显然会产生刺眼、眩光的不适感。设计师在这里特别对灯光进行了调整,所有训练室内的灯光均采用“反射光”,即不使用筒灯、射灯等直接光来进行照明。在满足照度的同时,提升训练中的舒适性。

▼门头造型动图

▼向上健身平面图

▼Day1普拉提平面图

▼分析图

项目空间信息:
- 空间名称:“向上健身&Day1普拉提(信阳万达店)”健身空间
- 空间类型:商业空间、品牌健身房
- 空间地址:河南省信阳市平桥区新七大道万达广场阳光里4F
- 设计公司:WDS DESIGN STUDIO
- 主创设计:吕柯薇
- 设计团队:王倩
- 灯光设计:CDN西顿照明
- 项目客户:向上健身、Day1普拉提
- 空间面积:625平方米
- 空间主材:水泥纤维板、柚木饰面、白色烤漆不锈钢、镜面、地胶、地毯、木地板、乳胶漆、亚克力、锡纸
- 空间摄影:聂晓聪
编辑版权©️SOHO设计区(sohodd.com),禁止以“SOHO设计区”编辑版本进行任何形式转载,如转载请注明转自“SOHO设计区网站”。

