成都·“好利来”概念店(宽窄巷子1992主题店) / Some Thoughts
店铺地址:四川省成都市青羊区窄巷子21号1栋1层1号;人均消费:64元/人
千百年来,宽窄巷子一直是成都这座古老城市文脉延续的缩影。在建筑上这里不仅是老成都“千年少城”的最后遗存,同时也是北方胡同文化在南方的唯一样本。从清朝八旗兵营的宅院到现代化的历史文化商区,宽窄巷子始终是一座包容当代并抒写未来的载体。
▼项目外观
-Some-Thoughts01.jpg)
“好利来1992”入驻宽窄巷子,期盼以当代的表达方式向传统致敬,并回顾品牌创始至今几十年来的发展历程。Some Thoughts认为对回顾传统,在理解上需要避开某种风格的驱动,同时寻求一种超越时代背景的形式与材料之间的关系。
▼设于传统建筑中的店铺
-Some-Thoughts02.jpg)
▼传统和现代材料的对比
-Some-Thoughts03.jpg)
▼店面标识和细部
-Some-Thoughts05-06.jpg)
▼入口空间
-Some-Thoughts04.jpg)
▼入口处座位区
-Some-Thoughts07.jpg)
通过挖掘商品与材料之间的关系,我们发现糕点作为商品与空间中使用的玻璃砖、瓦在用途和规格上都有着明显差异。但追溯其制造过程,当液态状经过高温冷却后,一个既易碎又有形的固体被制造。在传统迭代至今的共性面前,我们期待它们去赋予空间某种新的秩序并被到访者重新理解和接近。利用玻璃瓦作为滤光器,使之在空间中折射、漫反射,从而引发空间及粗糙表面与光线的相融,在时间的推移中让到访者体验到一种多变的重叠感。
▼轴测图
-Some-Thoughts31.jpg)
▼接待区和收银台
-Some-Thoughts19.jpg)
▼产品展示区
-Some-Thoughts15.jpg)
▼充满现代感的展示台和传统结构形成对比
-Some-Thoughts12-18.jpg)
▼玻璃砖制成的展台
-Some-Thoughts16-17.jpg)
▼楼梯间
-Some-Thoughts20.jpg)
▼从楼梯间回望一层空间
-Some-Thoughts21.jpg)
▼二层就餐区
-Some-Thoughts23.jpg)
▼亲密的空间氛围
-Some-Thoughts24.jpg)
设计师尝试将视觉附着在古建筑的属性上进行重组,通过装置与建筑的相关性在空间中拉开视觉的张力并模糊直白的视觉符号。空间提供了大众对传统与当代之间的全面探索,并代表了某种情感语境,辅助想法向到访者输出了一个可感知的空间。
▼空间细部
-Some-Thoughts27-28.jpg)
-Some-Thoughts08.jpg)
▼材料细部
-Some-Thoughts29-30.jpg)
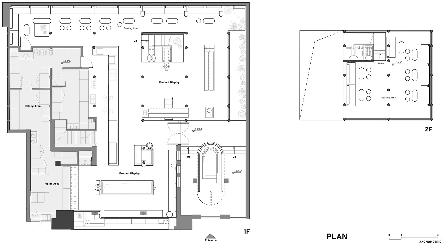
▼平面图
-Some-Thoughts32.jpg)
▼剖面图和细部
-Some-Thoughts34.jpg)
项目空间信息:
- 空间名称:“好利来”概念店(宽窄巷子1992主题店)
- 空间类型:商业空间、零售空间、概念店、实验室风格
- 空间地址:四川省成都市青羊区窄巷子21号1栋1层1号
- 人均消费:64元/人
- 设计公司:Some Thoughts空间设计工作室
- 主创设计:李京泽
- 设计团队:刘盛雨、谢朕
- 施工单位:上海缇琪实业有限公司
- 空间面积:240平方米
- 空间主材:玻璃砖、水晶砖、不锈钢、涂料、瓷砖、亚克力
- 摄影版权:邵峰-榫卯建筑摄影
- 项目客户:好利来
编辑版权©️SOHO设计区(sohodd.com),禁止以“SOHO设计区”编辑版本进行任何形式转载,如转载请注明转自“SOHO设计区网站”。

