成都·BMW宝马体验中心 / ARCHIHOPE
店铺地址:成都市郫都区高店路
灵感来自BMW VISION NEXT
Inspired by BMW VISION NEXT
从巴伐利亚飞机厂到BMW VISION NEXT100,历经百年的宝马不仅是汽车品牌,更是一种文化。建筑师从NEXT100概念车上抓住了他百变的三角形肌理单元,由此基本单元融合地缘特色创造出成都宝马宝创新展厅的动线与联系,完成了从建筑改造到景观及内部空间的一体化高品质设计。
▼远景鸟瞰

项目概览
Overall of the Project
该项目坐落于成都郫都区高店路旁。总建筑面积10000余平米,原建筑荒废多年,外墙砖老化严重,部分剥落,以及烟道外露等等,改造实际要面临着挑战很多。业主希望该建筑成为作为一个充满活力、引人注目的体量,易于从对面沿线的高铁及公路上识别,并且将宝马的环保可持续理念融入其中。
▼项目外观

建筑师将建筑主体外设置了第二层表皮——阳极氧化冲孔板,肌理从VISION NEXT的概念车皮肤三角形中获取灵感,强化了纵横矩阵层叠体块的可读性。在保证采光的情况下,冲孔板将建筑内部车间笼罩起来,使建筑整体外立面富有层次感。冲孔板内的幕墙单元是大面积可独立开启的自然通风窗,减少了夏季阳光的大量直接照射吸收的辐射热导致出现热岛效应,减少降温耗能比率,从而达到节能减排的可持续理念。它为夏日带来了遮阳,为冬日创造了隔热。像一层生态皮肤,让建筑更加环保。
▼建筑立面

▼冲孔板细部

在接受了建筑外观方案后,业主的要求是工期短且成本可控,于是我们提出了预制钢结构的方案,在加工车间里完成大量工作,然后在现场组装这些预制构件。这个方案确保了工程的质量和准确性。建筑、景观和室内的一体化设计使得整个项目能够将设计理念一以贯之。
▼入口外空间

建筑内部的南面空间一层是专业的宝马车展厅及路演活动区,后部分是接车预检的服务车间,全开放的空间为客户提供了可视化的预检服务;夹层是开放休息区、周边零售区等共享社交区,设计对整个空间的初衷是社会性、通透性的,所以整个一层内双层空间应是融为一体的。
▼轴侧分解及动线图

我们所知,建筑场地所在的郫都区地表水均为都江堰宝瓶口内江分出的水系,这个地缘特色启发了建筑师的设计灵感。于是建筑师没有做过多的空间分隔,而把重点落在了大厅的动线设计上,用动线设计回应都江堰水系场域的概念,以一个单元衍生变化的设计语言将场域、建筑、人、车、生活方式及宝马品牌理念关联在一起。
▼装置与建筑立面

这个单元依然来自BMW VISION NEXT的三角形符号,构成一个几何体大型吊顶装置,延伸贯穿将夹层两个空间形成共生关系。悬挑出夹层的装置部分,主要由四片三角形构成一个指向未来的箭头符号。
▼室内空间概览

装置延展部分是为顾客动线做一个引导提示,从展车大厅的不同车型区域,到生活方式区、周边零售区、休闲区、茶室、咖啡区等两层复合功能空间,用这个三角单元衍生而串联起来,同时也将展示、销售、客户体验、售后服务融会贯通于一体连接起来。正如业主所说的“我们没有任何神秘的地方,所有的服务都对顾客开放,来的所有人都可以自由享受我们给大家带来的免费服务,不管是咖啡还是茶道还是各种娱乐社交活动”,因此整体空间布局都没有实质的物理隔墙,而是希望给顾客一个可以自由穿梭的空间。
▼自由穿梭的开放空间




装置的钢结构将来可循环利用。挑空的大厅拔高视觉空间的同时提高整体亮度,从而减少繁多的灯光布置,节省了成本也降低了电耗。
▼明亮的挑空大厅

▼装置与大厅

▼装置界定的空间

▼标识墙后的洽谈区

二层是相对独立的客户餐厅及内部办公区,三四五层则是专业的维修车间,在这个复合性的多功能综合体,我们在整体设计上注重的是动线分流:顾客、服务人员、车间工人的动线,都有各自的互不影响的独立动线设计。
▼楼梯,二层为办公空间

▼楼梯细部

▼展厅

我们认为好的设计不是材料的堆砌,简洁的木纹色及白色是整个空间的主基调。作为环保材料的着色木纹铝型材,不会释放氡、甲醛等有害元素,且可塑性强,更重要的是不但使用寿命比实木长,而且取代实木能起到保护生态环境,减少材料资源的浪费。立面白色不锈钢具有重复利用的属性,不会变色生锈并且安全可靠,为整体空间提升简洁调性,同时也达到了重复利用的可持续发展理念。
▼夜景

▼总平面图

▼一层平面图

▼夹层平面图

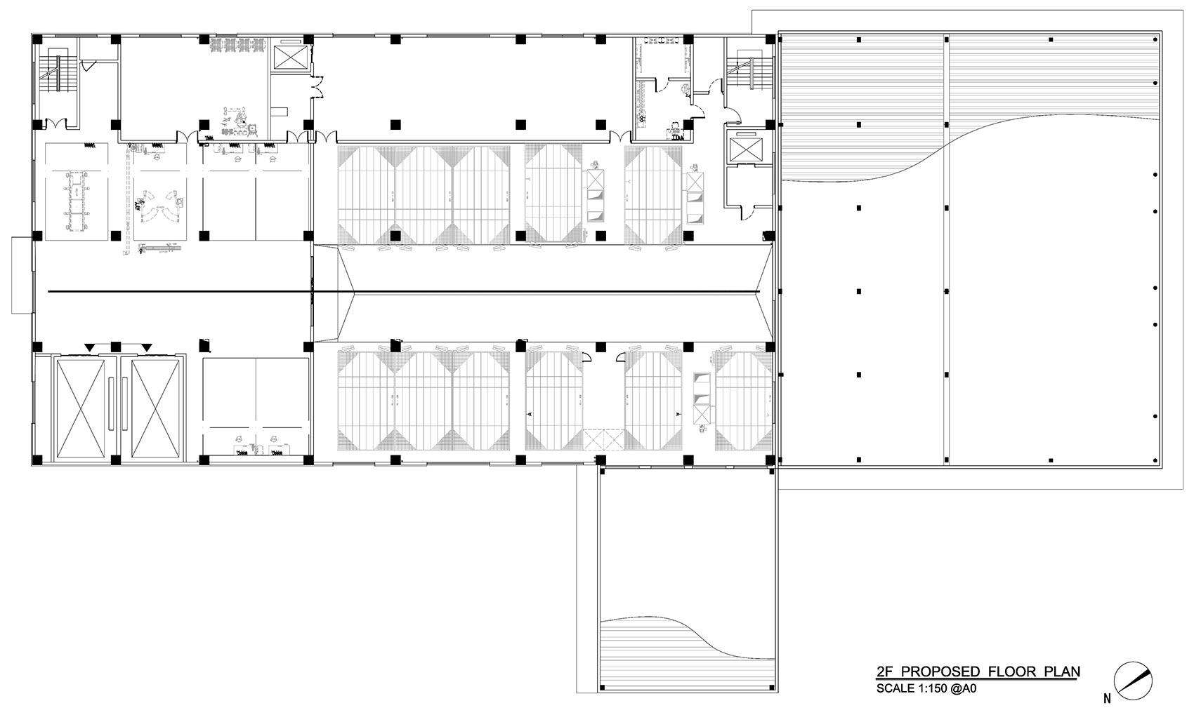
▼二层平面图

▼三层平面图

▼南立面图

▼西立面图

▼东立面图

项目空间信息:
- 空间名称:成都BMW宝马体验中心
- 空间类型:商业空间、体验店、汽车展厅
- 空间地址:成都市郫都区
- 建筑设计:ARCHIHOPE朱海博建筑设计事务所(UK & SZ)
- 室内设计:SIAD故事空间(深圳)设计有限公司
- 主创设计:朱海博、方洁、许畅
- 深化团队:何梦君、龚腾、谭传利、赵庆、董新安、卢昆、蓝国军、蓝国安、冯红梅、杨景茂、邓冠英、廖金朋等
- 项目业主:森那美Sime Darby 集团 & BMW宝马集团
- 项目面积:10841平方米
- 空间主材:阳极氧化冲孔板、木纹铝板、幕墙玻璃、不锈钢、灰地砖、麻石等
- 摄影版权:吴鉴泉
编辑版权©️SOHO设计区(sohodd.com),禁止以“SOHO设计区”编辑版本进行任何形式转载,如转载请注明转自“SOHO设计区网站”。

