上海·Blue Bottle Coffee蓝瓶咖啡(裕通店) / Schemata Architects
咖啡厅地址:上海市静安区长安路908号;人均消费:60元/人
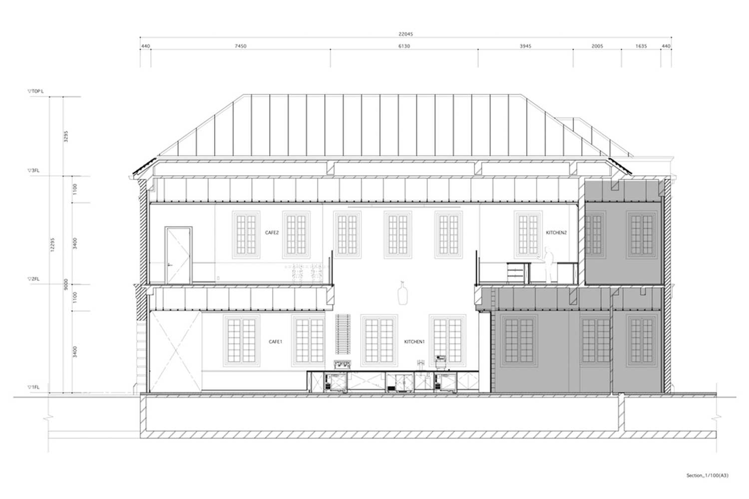
蓝瓶咖啡上海裕通店位于一座西式的上海市历史建筑内。不过,具有历史感的建筑装饰只存在于现有建筑的外部,内部则运用了裸露的梁柱结构作为装饰。

建筑师在设计时聚焦于建筑历史性与当代元素的边界地带的对比。


为将这一边界略向内移动,除了古董家具和用旧木头制成的柜台外,建筑师采用了白色的造型墙和天花设计。与此同时,现有的混凝土结构、玻璃和不锈钢家具则表达了当代元素的氛围语境。

建筑内部地面层和二层之间的材料和家具差异营造了独一无二的顾客体验。地面层全新制作的家具和混凝土楼板给短暂来访的顾客以爽利之感;而二楼的复古家具则给在店内细品咖啡的顾客享受奢华时光的感受。

项目空间信息:
- 空间名称:Blue Bottle Coffee蓝瓶咖啡(裕通店)
- 空间类型:餐饮空间、咖啡厅
- 空间地址:上海市静安区长安路908号
- 人均消费:60元/人
- 设计公司:Schemata Architects
- 设计团队:Shota Miyashita、Takuya Enta
- 当地建筑师:RHY
- 声学设计:Taguchi Audio, WHITELIGHT.Ltd
- 合作厂家:WHITELIGHT、ZH DESIGN & CONSTRUCTION
- 空间面积:762平方米
- 空间主材:混凝土、木材、红砖、不锈钢、玻璃、白色涂料
- 摄影版权:Studio FF
编辑版权©️SOHO设计区(sohodd.com),禁止以“SOHO设计区”编辑版本进行任何形式转载,如转载请注明转自“SOHO设计区网站”。

