南京·MOOI ARCHIVE工业风西餐吧 / 三厘社
西餐吧地址:南京市建邺区兴隆大街50号江苏智能制造新都市产业园5栋1楼113号;人均消费:135元/人
MOOI ARCHIVE选址于南京新都市产业园,其场地前身是南京第二机床厂。作为金陵历史上的老牌明星工厂企业,如今已蜕变为引领创新发展的新锐产业园。设计团队保留厂房空间框架,在其中打造一处消融边界的原创概念餐吧,以新颖且开放的空间姿态,融入具有工业感的历史建筑风貌,创造适宜当代生活的社区商业空间。

得益于临街且毗邻社区的优越位置,设计团队以“消失“与“融入”作为设计逻辑,并将“MOOI”(荷兰语中寓意“美好”)作为进一步深化品牌理念的具象表达。秉持“少即多”的设计手法,在保证实用性的同时,摒弃空间边界,将户外景观延展至室内,巧妙融入到街道里的社区生活之中,使人们如坐公园中用餐。以多元化的空间风景,为消费者带来与自然亲密接触的难得体验。

整旧如新,举重若轻
在项目初期考虑空间的整体布局时,设计团队希望尊重建筑原有面貌,并避免同质化的空间营造。如何另辟蹊径、重构空间框架,又如何以友好轻盈的空间体验消弱建筑的厚重感,成为此次团队聚焦的议题与愿景。
▼空间分析图:
于是在此次空间策划中,设计团队经过反复的结构推演,以“消失”作为线索,在整体建筑内搭建桁架,配以桥梁拉索的构造形式,打造出长达8米的无底部支撑机构,将后厨区悬置二层,巧妙地划分出餐区空间与功能空间,实现柱体“融入”空间。



悬挑的结构体块以镜面材质包裹,成为环境装饰的一部分,与整个空间进一步融合。巧借老厂房的对称结构,当消费者仰望镜面,二层空间仿佛在镜像中隐身的玻璃盒子,再次呼应“消失”的主张,友好地消除了结构体块的厚重感。举重若轻的同时,将老厂房约11米的层高优势凸显,为营造开阔空间带来可能。老建筑的框架成为新空间的外立面,以新旧空间的嵌套感让边界消融,为空间创造延展可能。


消融建筑边界,与自然亲切对话
设计团队在餐区栽植了一颗5米的杨梅树,深度模糊了室内与室外的感受界限,在悬挑的巨构尺度下,景观绿意与工业风格的空间美学相宜。木色桌椅用具与室内外的景观呼应,营造人们与自然对话的场所,空间不再强调自身的存在,“消融”在自然之中。通透的玻璃立面搭配丰富的室内外绿植,消除了混凝土建筑体的内外边界,让置身其中的食客与自然亲密接触。

本案的灯光设计试图模拟自然呼吸般的动态光感,在阳光板立面下为空间在不同的时间点营造出差异感氛围。光线感应装置抓取从日出到日落的不同光照,触发室内灯光的6个不同场景,从白日活泼生动的绿色、蓝色到傍晚的橘色、红色,最终过渡到夜晚的粉色与紫色,光线的切换呼应着自然的节奏,与二层空间体的镜面反射互动中,更巧妙地将边界消解,给予空间内外一场时空游戏般的梦幻体验。

开放的街角社群
餐厅立面采用无框折叠的玻璃窗,以L形半围合出通透的底层用餐区,满足多种时节与场合形态的使用,在混凝土的框架结构映衬下,强化了界限的消融,餐厅空间以更开放的姿态向街区及路过的人们传递友善的讯号,邀请他们入内,或驻足、用餐、小聚,参与社群生活氛围构建。在晴好的午后,周边居住的家长带着小朋友前来享用创意餐饮。大人们谈天说地,小朋友则在餐厅中漫游、释放孩童天性,如在公园一般自在。自然感为空间提供了极佳的氛围,也让人们的主动探索更为有趣。

在一个曾经以工业生产为轴的场所里营造出新颖的活动肌理,MOOI ARCHIVE伫立在城市的园区街角,日与夜的多重空间体验让人愉悦。人们在此逐渐重构着自己与空间、街区及自然的联结感,也能感受到犹如社群般的独特体验。在趋于平淡的日常里,启发人们重新探寻一些新鲜的生活向往。

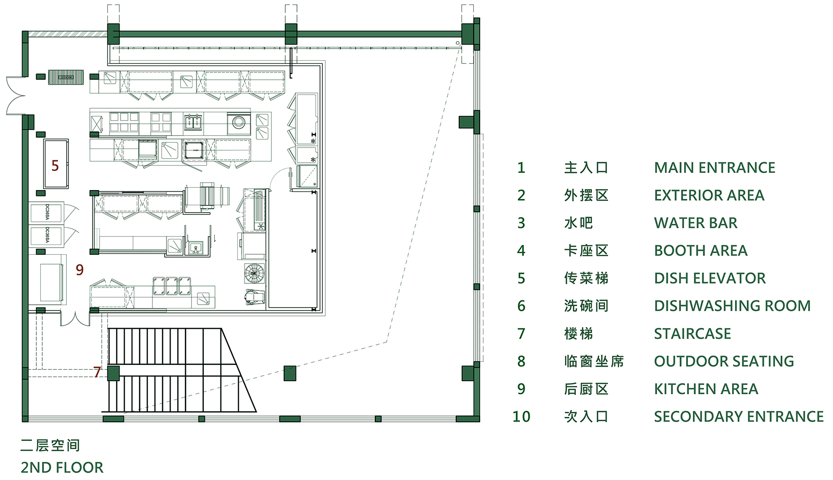
▼平面图:

项目空间信息:
- 空间名称:MOOI ARCHIVE西餐吧
- 空间类型:餐饮空间、西餐厅、工业风餐厅
- 空间地址:南京市建邺区兴隆大街50号江苏智能制造新都市产业园5栋1楼113号
- 人均消费:135元/人
- 设计公司:三厘社 TRIOSTUDIO
- 灯光设计:维光照明
- 景观合作:易格自然
- 建筑面积:201平方米
- 空间主材:肌理涂料、软木板、镜面板、不锈钢、聚碳酸脂PC板(阳光板)
- 摄影版权:ingallery
编辑版权©️SOHO设计区(sohodd.com),禁止以“SOHO设计区”编辑版本进行任何形式转载,如转载请注明转自“SOHO设计区网站”。

