北京·“Bananain蕉内”概念店(三里屯店) / Some Thoughts
零售店地址:北京市朝阳区三里屯西街43号楼亿圣大厦一栋1-2层;人均消费:320元/人
本案位于北京三里屯西街,在整改前,这里是充满烟火气的“脏街”。由于连接着三里屯的南北区,野蛮生长与精雕细琢的商业形态在这里交织。重新审视环境的基本要素,浓厚的人文背景与多元的现代商业为本案的定调提供了指向。

▼改造前:

▼改造后:

▼轴测分析图:
物体的地质力量与环形桥梁在挑高的空间中形成一个巨大的连续体,建筑的偶然性、包容性在此转化为具有现实力量的展陈空间。大众在场地中穿梭所体验到的是一种过渡的现象。某种惯例便以体验的形式出现,并伴随着对视野、对印象的打破。



环形桥梁是两种形态的结合,既是能让我们跨越物理的障碍的结构,同时,又能在僵硬的柱网间激活一个新的空间惯例。当空间格局不再僵硬时,大众与场地的互动也随之变得更为积极。


关于几何性质的抽象集合是通过探索非常规的线条与材料来完成的。金属管是非常理想的再加工类材料,通过加热后其可塑性能满足空间所需的弧形或转角。



女性内穿商品区域是独立、私密的空间,内部设有独立试衣间。主动回避浏览商品时的尴尬是为了更自由的选购。空间中的科技感与商品属性在视觉上无差别的保持着反差。借此,蕉内以更清晰的方式表述体感科技下的功能性与舒适性。

金属管在平行二通的交替固定下,该材料所形成的间距与规格,既可作为墙体或道具的装饰面,同时又可以满足商品陈列对荷载与灵活性的需求。当“有机”的材料被破坏、打磨,粗糙的肌理会帮助我们感知到“随机性”的力量。而金属构造所阐释的“精确性”,使得两者在解构与重塑之间碰撞出“反差的美学”。

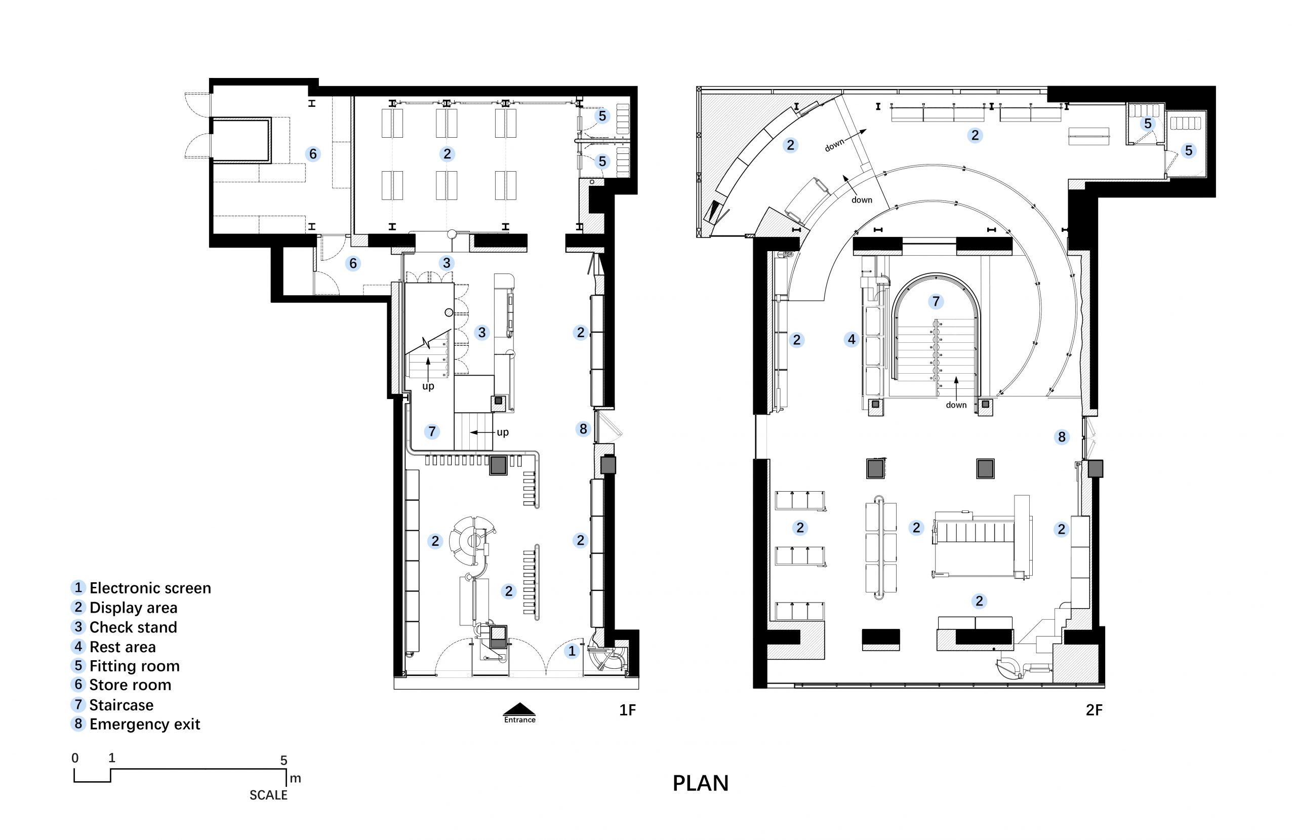
▼平面图:
▼剖面图:
项目空间信息:
- 空间名称:“Bananain蕉内”概念店(三里屯店)
- 空间类型:商业空间、零售空间、服装店、品牌概念店、超级IP
- 空间地址:北京市朝阳区三里屯西街43号楼亿圣大厦一栋1-2层
- 人均消费:320元/人
- 设计公司:Some Thoughts
- 主创设计:李京泽
- 设计团队:谢朕、李连琳琛、金强
- 施工单位:上海慧弘建设集团有限公司
- 道具制作:广东甄诚货架有限公司
- 空间面积:386平方米
- 空间主材:橘色颗粒涂料、黑色微水泥、米色微水泥、白色水泥自流平、石塑地板、银色杜邦纸、哑光拉丝不锈钢、哑光拉丝金属管、亚克力
- 摄影版权:SFAP
编辑版权©️SOHO设计区(sohodd.com),禁止以“SOHO设计区”编辑版本进行任何形式转载,如转载请注明转自“SOHO设计区网站”。

