苏州·“棉仓”新零售集合店(活力岛店) / 空间站
体验店地址:苏州市相城区元和街道华元路东活力岛商业街5号;人均消费:400元/人
棉仓是一家立足社区的大型集合店,包含了餐饮、服装零售和亲子活动区三个功能模块。我们放弃了以功能分区作为出发点的设计方式,而以一个完全匀质的、抽象的空间模型作为设计的基础,让一种有适应性的结构单元自行生长。这样就优先形成了空间的体验部分:尺度、重量、边界、围合感、流动性。第二步再将功能区域叠加在这个系统之上,对系统进行微调,形成最终的设计结果。


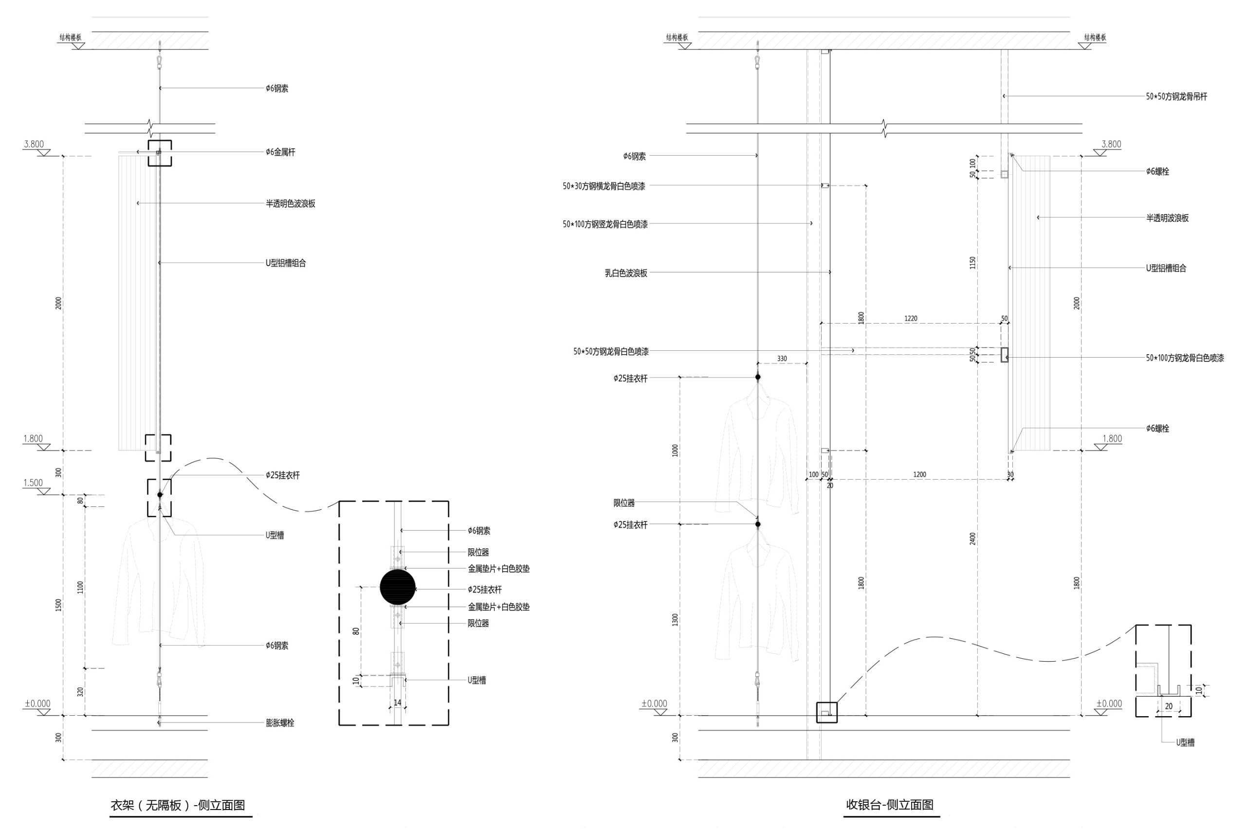
我们集中研究了一种轻盈的曲线单元。这种单元以受拉的钢索作为结构,所有的受力构件都非常纤细。在这个结构体系之上吊挂半透明的聚碳酸酯波浪板。两种柔性材料的结合使整个结构在被碰触时会发生微微的颤动,仿佛昆虫的翅膀一般。在这个结构体系之上还可以生长出座椅、挂杆等构件,转化为有人体尺度的家具。

这种单元可以以不同的半径复制、延伸,适应场地中不同尺度区域的划分需求,最终的形态如同从场地中自发生长成的生物体。它与原有场地粗粝的混凝土结构完全脱离,形成轻与重的对比,并不混淆新建与既有,让体验者可以阅读出场地的历史。
这个结构单元平等的出现在餐厅、服装售卖区和亲子活动区,突出了对不同功能处理的“一致性”,形成不同功能之间的自然过渡,最终实现“在漫步中发现”的空间体验。

▼平面图:
▼节点图:

项目空间信息:
- 空间名称:“棉仓”新零售集合店(活力岛店)
- 空间类型:商业空间、多业态空间、集合空间、新零售空间、体验空间
- 空间地址:苏州市相城区元和街道华元路东活力岛商业街5号
- 人均消费:400元/人
- 设计公司:空间站建筑师事务所
- 主创设计:汪铮
- 设计团队:汪铮、王方超、许辉、靳赛赛、王静静
- 机电设计:闫天雄
- 给排水设计:张沙
- 暖通设计:张沙
- 施工单位:上海珏亮装饰工程有限公司
- 建筑面积:1100平方米
- 空间主材:瓷砖、桦木板
- 摄影版权:SpaceStation、金伟琦、空间站建筑师事务所
编辑版权©️SOHO设计区(sohodd.com),禁止以“SOHO设计区”编辑版本进行任何形式转载,如转载请注明转自“SOHO设计区网站”。

