北京·Space 687211复合空间设计 / 空间站
复合空间地址:北京市朝阳区百子湾路16号后现代城
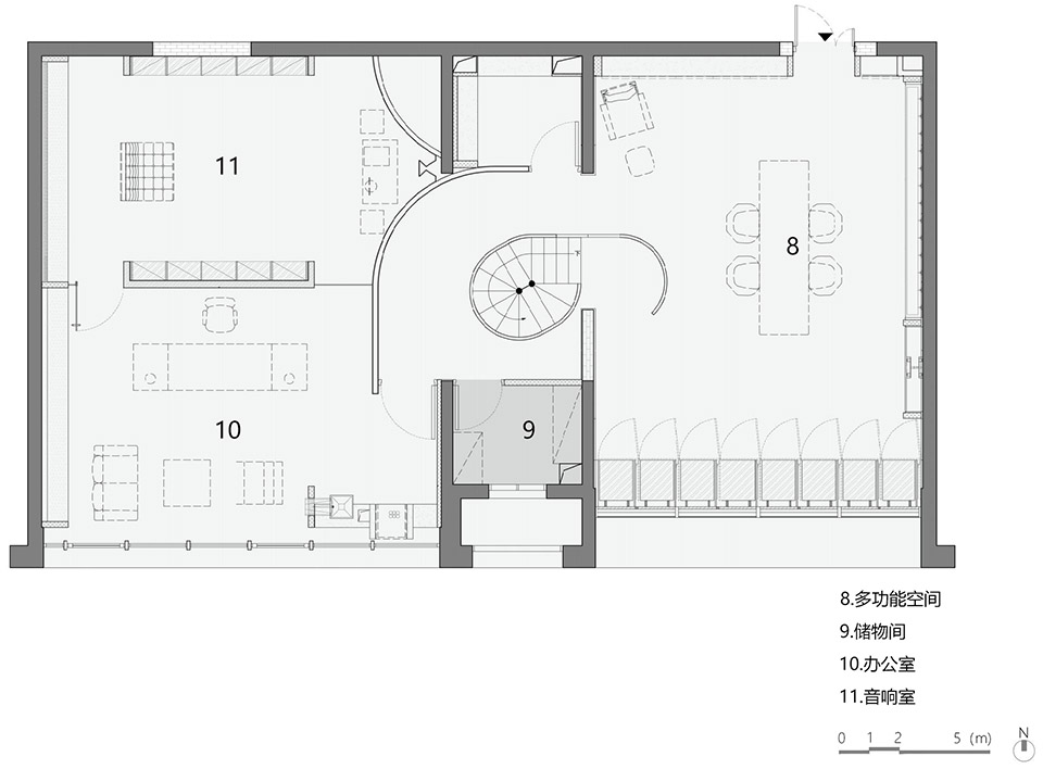
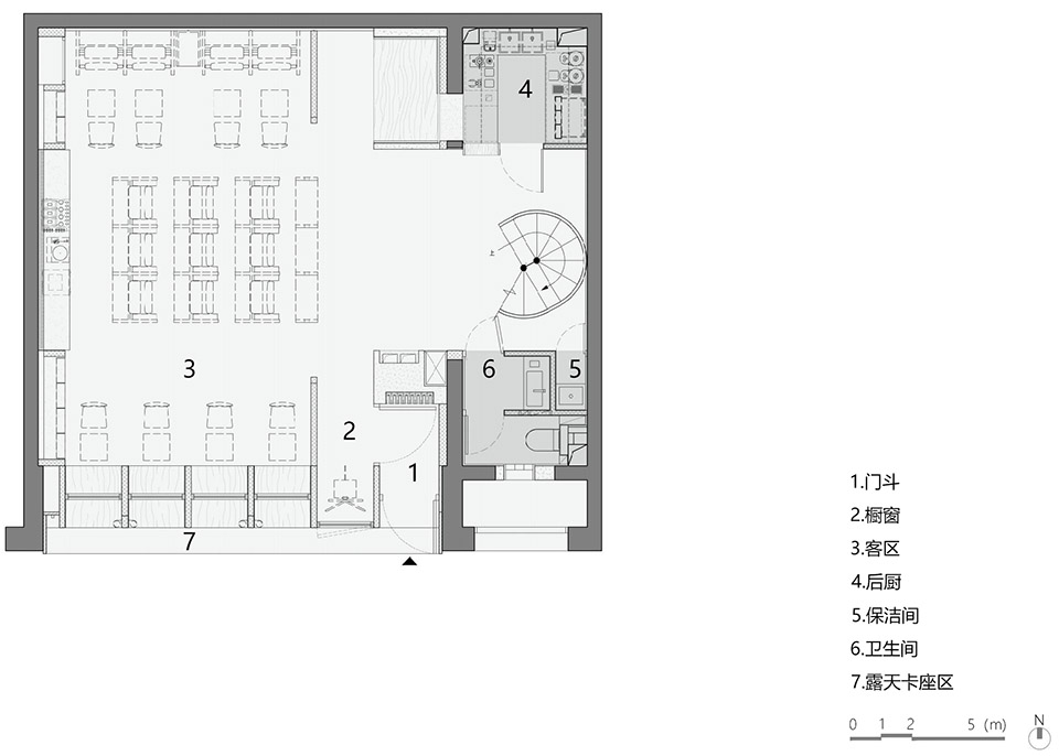
Space 687211有四个主要功能:一楼是一家以爵士音乐为主题的咖啡馆,这个空间里将展示和播放空间的主人多年来收集的爵士乐黑胶唱片;二楼的一半面积是一个展厅,常设的展品是Dieter Rams的工业设计作品以及设计类的图书,同时这个空间还会举行一些设计类的临时展览;另外“一半的一半”,是个人办公空间,另一半则是自用的音响室。



四个功能从公共(对外经营)、半公共(只对会员开放)、半私密(接待访客)、到完全私密,其空间属性层层递进。原有场地一二层各有入口,楼板可改造范围有限,二层空间跨越剪力墙。
▼底层平面草图:



设计如同破案,证物繁多,线索纷乱。我们决定跟随音乐这条线索,一步步接近真相。在音乐的抽象性和空间的抽象性之间是否存在一种直接的沟通呢?所谓直接,是要避开“语言”这座“降维”的桥梁,保持这两者共同具备的模糊的、原始的、无条理的能量。
▼二层平面草图:


我们尝试在一张图纸上叠加光线、声场、模数和空间的递进关系,并以这张图纸作为设计的“概念”,与客户沟通并同步团队的设计目标。这种尽量“剔除”语言的方式会让度一部分沟通的效率,换来设计过程的模糊性和偶然性。直到我们加入材料的逻辑,整个局面就变得开朗起来:光线获得了承托,声音获得了质感,细部的尺寸和交接也变得易于理解,就连Dieter Rams的作品也似乎得到了空间的“诠释”。

完成后的空间呈现出一种“整体的流动感”,它跟随音乐流入每一个在场者的情绪之地,但却无法用语言和照片去复现。

▼平面图:

项目空间信息:
- 空间名称:Space 687211复合空间
- 空间类型:商业空间、复合型空间、主题咖啡店、展览展示空间
- 空间地址:北京市朝阳区百子湾路16号后现代城
- 设计公司:空间站建筑师事务所
- 主创设计:汪铮
- 项目负责:杨杰
- 设计团队:陆娟、向怀志、廖惠琴
- 施工图负责人:许辉
- 商业模式咨询:凹凸合作社
- 给排水设计:张沙
- 暖通设计:卢芊
- 电气设计:闫天雄
- 工程技术负责人:杨定荣
- 工程现场负责人:李益中
- 空间面积:200平方米
- 空间主材:海洋板、软膜灯箱、花岗岩、不锈钢
- 摄影版权:金伟琦
编辑版权©️SOHO设计区(sohodd.com),禁止以“SOHO设计区”编辑版本进行任何形式转载,如转载请注明转自“SOHO设计区网站”。

