上海·“WOKKA by 艮上”西餐厅设计 / 弹性工作室
餐厅地址:上海市黄浦区中海环宇荟1FL136-137;人均消费:120元/人
餐厅位于上海新天地板块的环宇荟广场,毗邻马当路。原品牌主打日式简餐+下午茶,虽产品力不错也有一批固定的客群,但业态经营不清晰、客席数较少,同时整体装饰也面临老化的问题。于是品牌进行了全方位的升级,业态上转变为更受附近上班族喜爱的西餐厅模式,因此在设计上也做了颠覆性的改动。

餐厅位置优越,靠马当路一侧是次入口,主入口则位于商场内街。为了区别于周边的店铺,沿街立面的设计则是采用了较为克制的手法,大面积白色流水石搭配小青砖,是整个建筑立面的主要元素,在热闹的临街商铺中显得简洁素雅。设计师希望整个空间坚守朴素、简约、实用的原则,所以设计上摒弃了虚华的装饰。以简单质朴的材料为主,纹理清晰的榆木,暖色系的硅藻泥涂料,以及户外使用的青砖,让人们能够深刻的感受到材料本身赋予的美。



由于餐厅采光很好,所以设计上并不希望将餐厅和外场完全阻隔开。从商场内街看向餐厅,大面积的开窗使得餐厅室内外空间可以相互交融在一起,最大限度的将自然光引入到室内的同时也不遮挡室内外人群的视线,创造出一种“看”与“被看”的视觉关系。设计师在外摆区加入了许多绿植来营造了绿意盎然的氛围,同时定制的绿植盒也起到了界定营业范围的围挡功能。


在空间属性上,将餐厅翻折窗区域视为户外空间来处理,通过材质的选择和处理,使其与自然环境更加贴合,并表达对自然的亲和情感。地面采用了户外使用的小青砖,其未经修饰的分缝营造出一种自然质朴的感觉。墙面选择了榆木作为装饰材料,这种木材常用于户外环境。此外,设计师特意将这个区域的天花设计的较为低矮以及扩大了翻折窗区域的台面来弱化了内外界限,创造出一片自由之地,旨在为周边的写字楼和社区居民提供类第三空间的场所。实际运营后,这个“灰空间”也的确成为整个店铺最受欢迎的区域之一。

开放式的空间布局中,室内天花净高有4.5m。为了最大化利用层高优势,设计师利用不同的天花高度来划分不同的区域——吧台区和就餐区。不同立面高度的设计也增加了空间层次感,同时滑动式的照明系统则隐藏在天花造型的立面,视觉上让天花更为干净简洁。过道作为两个区域之间的过渡,因此设计师在过道的天花上采用了万花镜的元素,通过不同角度镜面的折射,将两个主要区域融合在一起,让空间更为统一和谐。

由于空间的设计围绕着自然和轻松的调性展开,许多软装饰品也都是与业主共同挑选,其中包括绿色基调的餐具、轻松休闲的挂毯、位于空间中心的幸福树以及款式多样的桌椅和多种类型的艺术灯具。同时空间中加入了足够多的插座点位以满足移动办公所需,对于餐厅来说这无疑是有所牺牲的,经过多次和业主沟通之后最终还是保留了这些点位,希望可以给到来来往往的打工人们一个惬意放松的空间。

▼轴测图:
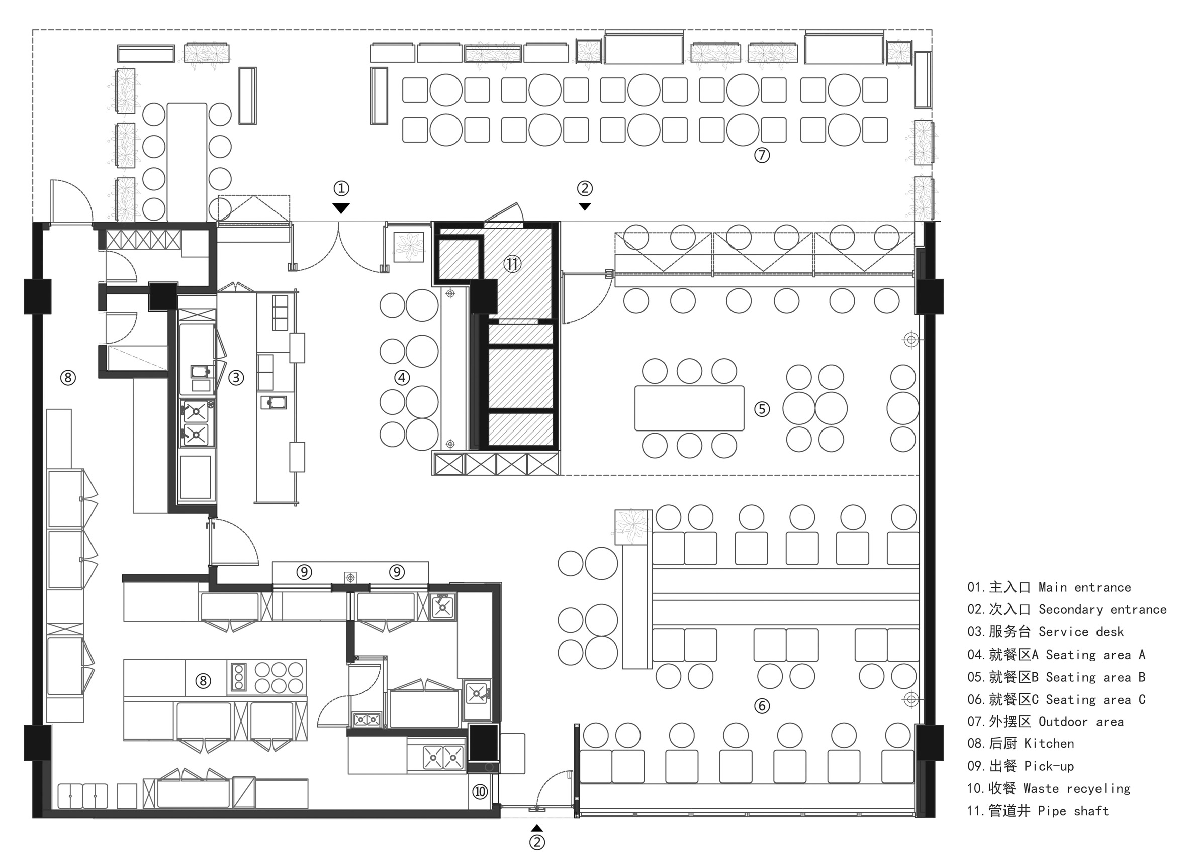
▼平面图:
▼立面图:
▼剖面图:

项目空间信息:
- 空间名称:“WOKKA by 艮上”西餐厅
- 空间类型:餐饮空间、西式餐厅、品牌餐厅、休闲餐厅
- 空间地址:上海市黄浦区中海环宇荟1FL136-137
- 人均消费:120元/人
- 设计公司:弹性工作室
- 设计总监:谭晨、牧之
- 设计团队:李正志、郭艳琴、李超、刘占雨
- 施工单位:上海第一建筑服务有限公司
- 空间面积:198平方米
- 空间主材:榆木板、桦木板、3M榆木膜、流水石、硅藻泥、青砖、夹丝玻璃、磨砂夹丝玻璃、拉丝不锈钢、镜面玻璃
- 摄影版权:half.half.五五开(胡彦昀,余舒扬)
编辑版权©️SOHO设计区(sohodd.com),禁止以“SOHO设计区”编辑版本进行任何形式转载,如转载请注明转自“SOHO设计区网站”。

