深圳·ANNND咖啡店设计(景田店) / 如室建筑
咖啡店地址:深圳市福田区景田南路国泰豪园1层119-120铺;人均消费:45元/人
Annnd新闻路店扩店升级,搬迁至离原址200m的街心花园附近,面积从20平米变成110平米。从第一家新洲升级店开始,如室一路伴随Annnd的成长,这次同样配合产品线的更新对空间风格同步进行了重新的思考和定义。经历了疫情三年的挣扎与坚持,扎根于社区的ANNND试图做出一些改变,或者说是更坚定地回到初心,以“温暖的守护”回应这个世界的不确定性——给社区提供“一个欢乐相聚的角落“。

▼视线与功能:
谦逊
以谦逊的心去感知和回应场所,找到场所的灵(the loci of the site)。不追求过度设计和自我表达,而是通过设计在可控的成本内尽量去使用真实的材料,一石一木,带给顾客可触摸的温润感受,如同我们孩儿时推开祖母家的那扇木门上的把手。

重檐
作为“INSIGHT-观”系列3.0,外立面的设计如室依然是充分思考了内外框景和相互观看的方式,在尊重原始建筑结构的基础上,充分利用层高打造出与众不同的重檐。
▼厚重单檐变为通透双檐:
将原始的单层厚檐拆分成双层檐,上层横向高窗引入漫反射光和绿意,消解原有室内深空间的封闭感,同时将顾客的目光引向高处及远处。下层檐既是对盛夏深圳过剩阳光的过滤与控制,将视线高度控制在刚好看到外部绿植处,同时也是对上部玻璃结构的承托。

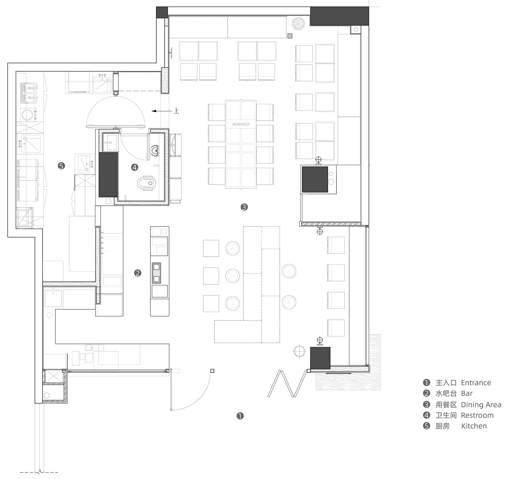
客厅
就餐区设置了不同高低的桌椅组合,适度的拥挤反而带来久违的亲切感与松弛感,营造出如在朋友家客厅聚会的轻松氛围。面对吧台是相对低矮的无靠背沙发,促进咖啡师与客户无碍的交流,同时也加速客户与客户之间的破冰,也是对老人家和小朋友的友好设计。

再进去则是Annnd传统标配的长桌,与定制吊灯一起打破了空间的横向构图,形成空间上的一个小高潮。空间的尽端是更私密的卡座区,立柱旁的绿植及墙面上的一抹温暖,让这个区域更拥有吃简餐的惬意及慵懒。将空间原有的金属卷帘门位置换成横向长窗,控制造价的同时也再一次对视线进行了遮蔽控制和横向延展,并在此设置了对外的长桌,对着窗外的景色发呆或埋头自习都是不错的选择。
▼方形通风口变为圆形景窗:


手作
看似简单低调的空间依然充满设计师埋下的小惊喜,如室这次有幸遇到很好的施工方,对不曾接触的特殊设计均愿意配合设计师进行不厌其烦的调整及现场再创造。我们利用触手可及的基础材料,以不矫饰的构建方式完成了富有物性的手工灯具与壁挂陈列系统。


如室在深圳第一次拥有了接近日本的匠作体系的体验,这也是设计师与施工方原本应有的良性合作关系。手工制作带来的独特体验及其后把玩的乐趣,如室希望都这些具体的行为和物件,能慢慢成为抵抗虚无的良药。

延续记忆
我们将老店的部分道具和设备移到了升级店,既是对环保的回应,也是记忆的延续。历经种种,“我们依旧站立在这里,就像我们一直都在,成为社区的微光。”
如室的“insight-观”系列源自心经的“观”。一者“内观”,关注自我审视和对东方美学的持续学习。一者“行观”,用我们对传统文化和生活方式的提炼去尝试唤起人们对美好生活的记忆和向往。

▼平面图:
▼立面图:
▼剖面图:

项目空间信息:
- 空间名称:ANNND咖啡店(景田店)
- 空间类型:餐饮空间、咖啡店、街边咖啡店
- 空间地址:深圳市福田区景田南路国泰豪园1层119-120铺
- 人均消费:45元/人
- 设计公司:如室建筑设计事务所
- 设计团队:王艺儒、朱丹丹、周敏、高帆
- 建筑面积:110平方米
- 摄影版权:夏同
编辑版权©️SOHO设计区(sohodd.com),禁止以“SOHO设计区”编辑版本进行任何形式转载,如转载请注明转自“SOHO设计区网站”。

