宁波·MODE COMMUTER男装品牌店(带梦胡同店) / 慕尚
服装店地址:宁波市钟公庙街道嵩江中路1002号带梦胡同A-1003
向阳而生.逐光而行
以目光描摹一座城市,慢慢地对焦,再慢慢按下快门,记录这座城市里的匆忙,感知过往的行人,不乏细致得体的着装,还有向上而温暖的灵魂-MODE COMMUTER。本案坐落于带梦胡同,一个可以拿起工作又不放下生活的年轻园区。我们希望该空间也能呼应整个园区的节奏,即要有慢节奏地沉思,又能快节奏的去回响。

原建筑空间有5米8的高度,对于一个零售商业空间来说,这高度并非是最好的选择。但单纯的为了光效去压低空间,又难免可惜。如何去利用这个高度的同时,又能有效的解决空间体量的比例。在推敲的过程中内建筑这三个字应运而生,我们决定由内做始点,利用原建筑的两根柱子,在原空间基础上做了一层飞檐结构。有效在保证建筑体量的同时,增加了空间的层次感。为了尽可能的去体现飞檐的轻盈与悬空感,在结构的加固上花了不少功夫,得益于施工方的竭力配合。
▼改造前:

▼改造后:


生长的力量
退去原建筑的外衣,裸露出粗糙的水泥柱,它所表达出来的那种与生俱来的力量感正是我们需要的。我们决定保留其原始的状态,作为一种力量的支点,飞檐从柱子上衍生出来,向着阳光的方向生长。在飞檐的色彩上,我们选择了暖色,一股带着温暖的力量迎向太阳。

结构与光的关系
解脱灯的束缚,迎接光的普照。为了最大程度的减少灯对造型的打扰,我们进行了往复推敲和测试,最终选择了线型灯,利用不锈钢灯槽实现上下打光,使光能柔和的洒下来。空调系统放置在试衣区的墙内和中岛柜子内。是在机电工程、结构工程、家具工程三方努力下完成的,空调的走管从清水泥地面浇筑时就预留在里面。
▼照度报告:



地面和墙体我们选择了能体现原始状态的材料,选用了清水泥和水泥砖。水泥砖能自然的呈现出来,得力于工程方的不断尝试和努力。我们把水泥砖的板材按单块木纹锯开,使其能交叉铺开来,这样解决了板材呆板的拼缝线。

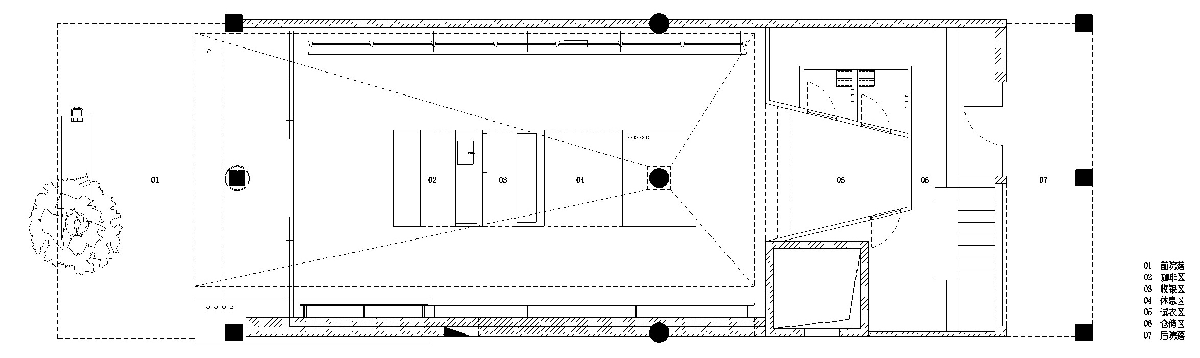
▼平面图:
▼立面图:

项目空间信息:
- 空间名称:MODE COMMUTER男装品牌店
- 空间类型:商业空间、零售空间、品牌店、男装店
- 空间地址:宁波市钟公庙街道嵩江中路1002号带梦胡同A-1003
- 设计公司:慕尚设计
- 施工单位:宁波一匠装饰
- 道具制作:宁波今优的装饰
- 灯光设计:光迹照明
- 空间面积:168平方米
- 空间主材:木纹铝板、木纹水泥板、清水泥现浇
- 摄影版权:金戎
编辑版权©️SOHO设计区(sohodd.com),未经许可禁止以“SOHO设计区”编辑版本进行任何形式转载,
(包括且不限于:媒体、网站、公众号等),如转载请注明转自“SOHO设计区网站”。所有项目照片/设计图形版权归原作者所有。
本站部分内容源自网络公开资源或用户分享,如若侵犯了原作者的合法权益,可联系我们进行处理。

