北京·华为旗舰店设计(王府井店) / 叠术建筑
华为旗舰店地址:北京市东城区王府井步行街银泰in88大厦
Superimpose叠术建筑应邀接受了在北京核心区域,为跨国科技公司华为,设计首家“北京旗舰店”的挑战。该店坐落于北京热闹繁华、享誉数百年的王府井步行街的十字地带,毗邻历史建筑故宫。作为传统与现代的交汇之地,王府井正在积极迎接国际化的时代潮流,而这片古老的、充满活力的商业区,不仅是中国文化底蕴的代表,更是国际化的窗口。

该店设有两层,占地超过1200平米,Superimpose叠术建筑从深厚悠久的地标古迹——例如故宫和长城中汲取灵感,将中国传统建筑元素、空间逻辑和构筑语言,巧妙地融入现代设计中,进行全新阐释。多年来,华为以“构建万物互联的智能世界”为愿景,不断扩展产品范围,广泛涵盖电子产品、智能设备等,并逐步打造出数字生态系统。此次北京旗舰店的设计,引入“城市客厅”的理念,尊重在地文化,同时为所在城市营造出一个全新的体验空间。

室内设计:中轴线与绿洲灵感
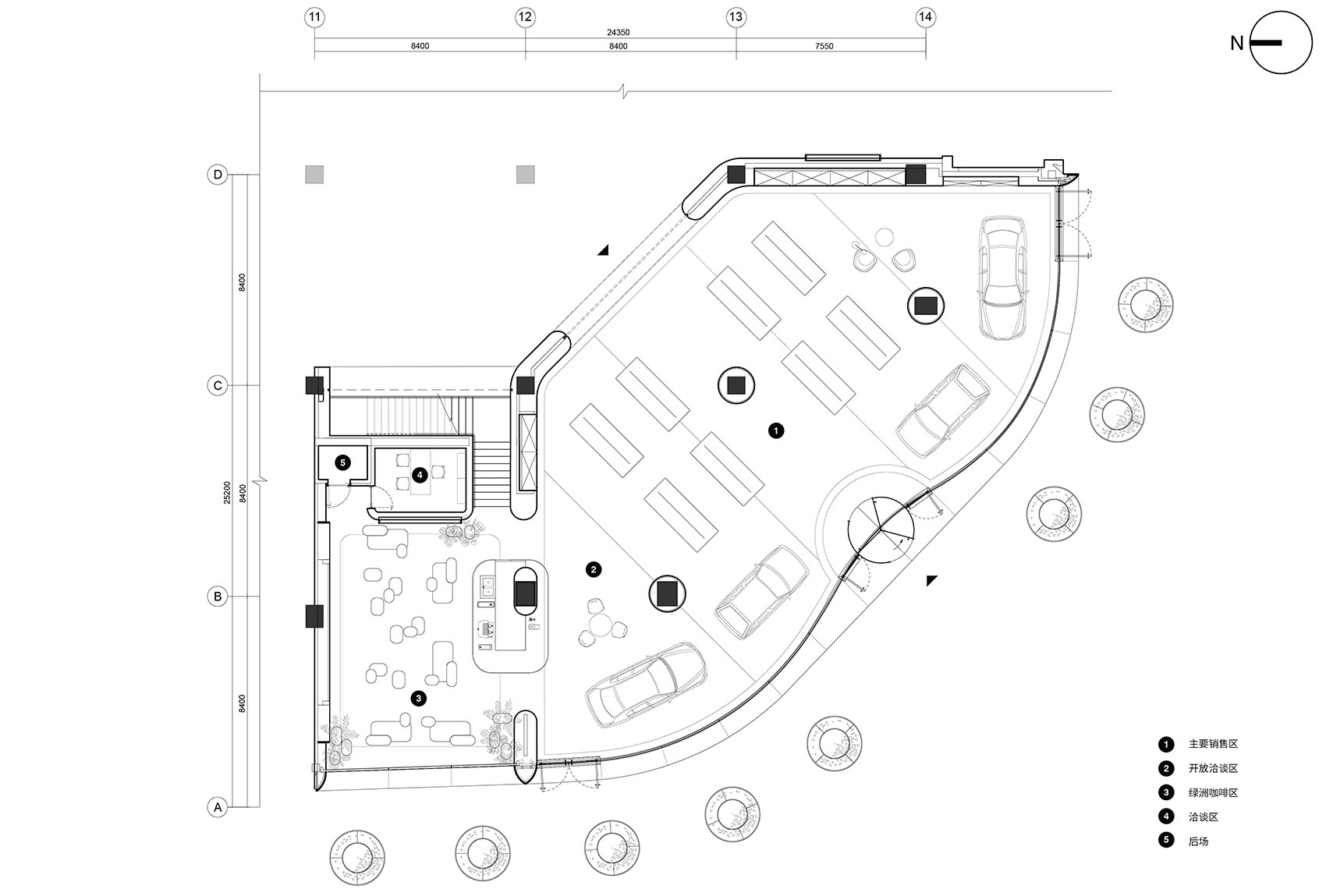
Superimpose叠术建筑秉持着“期待+1”的设计宗旨,全力投入这一挑战性项目。旗舰店整体采用连续的布局,灵感源自于紫禁城的尺度、对称性和不同空间类型。其中,展示厅位于整个店铺的中心,设计契合了人们对华为店面形象的期待——整洁、简约、细致入微的美感,致力于最大程度地展示产品,为访客带来沉浸式的空间体验。此外,设计团队结合“城市客厅”概念,创造了鼓励社区聚会、探索和互动的空间:绿洲咖啡区。

在原始建筑场地不对称的情况下,设计团队加入了一道厚重的天然莱姆石墙壁,将店面对称的划分为销售区、绿洲咖啡区,巧妙的与北京的城市脉络、中轴线、紫禁城均衡对称的布局相呼应,同样也是华为美学的延续。这个自然石材隔断墙,受到长城的启发,其清晰的墙面缝隙,是对长城砖墙的汲取与提炼。

绿洲咖啡区,旨在为访客提供一个互动体验场所,鼓励人们使用产品并融入“城市客厅”。咖啡区本质上是一个多功能空间,可用于举办活动、讲座或日常聚会。它在设计上采用木质天花、暖色微水泥地板和茂密的绿植墙,并放置了一座洞石咖啡吧台,呈现了一个自然、明亮温馨的韵律空间。咖啡区的楼梯设计独具匠心,踏步的另一端连接着一整块玻璃面板扶手,悬浮于郁郁葱葱的室内花园上方。这些细节,均是受到长城蜿蜒于北京苍翠山脉的景色启发。

立面设计:古老建筑的优美曲线
两层通高的玻璃幕墙,镶嵌在曲面造型的UHPC(超高性能混凝土)立面框架中,描摹出紫禁城壮丽的气势。立面的弧形造型,借鉴了北京城古老而优美的屋顶轮廓线。设计团队精密把控每一个技术细节,确保其表面处理干净而流畅。
8.8米高的玻璃板,凸显了立面对于城市的开放性,将街道上的人群自然地引至室内。值得一提的是绿洲咖啡区内,设有一块大型的LED曲面屏幕,增添了视觉吸引力,也将室内外无缝衔接,交融贯通。UHPC幕墙板,遵循商场裙楼的屋檐轮廓,而中间的玻璃门,则在入口处形成了一个凹形空间,表现亲切的邀请姿态。

作为旗舰店类型的项目,Superimpose叠术建筑的整体设计思路,旨在欢迎访客,避免繁琐或过分的装饰,专注于为华为打造一个高品质的互动空间,并在北京城市中心根植和推广数字生态系统,带来全新用户体验。
▼平面图:
▼幕墙大样水平:
▼幕墙大样垂直:
项目空间信息:
- 空间名称:华为旗舰店设计(王府井店)
- 空间类型:商业空间、零售空间、旗舰店、体验空间
- 空间地址:北京市东城区王府井步行街银泰in88大厦
- 设计公司:叠术建筑
- 主创设计:梁励德、Ben de Lange、Ruben Bergambagt
- 设计团队:JunWei Loh、许潇予、曲海波、王思捷
- 总承包商:上海信鸿实业(集团)有限公司
- 设计院:悉地(北京)国际建筑设计顾问有限公司
- 幕墙顾问:上海熙玛工程顾问有限公司
- 照明顾问:上海碧甫照明工程设计有限公司
- 空间面积:1233平方米
- 项目材料:UHPC 超高性能混凝土(外立面),天然莱姆石材(室内墙面),水磨石(地面),软膜天花(顶面)
- 摄影版权:Kris Provoost
编辑版权©️SOHO设计区(sohodd.com),未经许可禁止以“SOHO设计区”编辑版本进行任何形式转载,
(包括且不限于:媒体、网站、公众号等),如转载请注明转自“SOHO设计区网站”。所有项目照片/设计图形版权归原作者所有。
本站部分内容源自网络公开资源或用户分享,如若侵犯了原作者的合法权益,可联系我们进行处理。

