房产中介公司Mr. Homes“模块化”办公室
为该项目设计的办公空间是一家提供全包房地产服务的房地产代理公司 – Mr. Homes。该空间是一个Mr. Homes为租户、房东和房地产专家以及其他潜在客户提供衍生服务的枢纽。
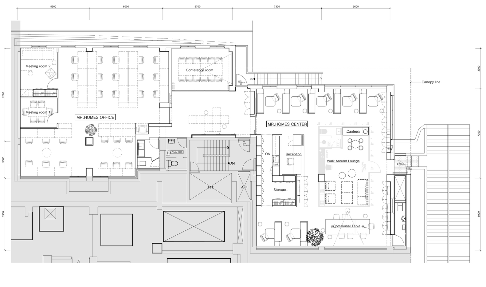
工作模块需要七个展位来顾问工作、会见客户并签订合同,每两米部署全包家具,家具包括两个客户座椅,打印机和橱柜,咨询顾问垂直于客户,以便于帮助,全包家具模块也反映Mr. Homes的家园全包商业理念。



▽ 在中间,一个休息室是以24㎡的家庭工作室的形式安排的,这是一个半虚拟空间,客户可以随意走动、观摩,公用桌基本上是等待客户或作为会议的场所;无标题展示墙由展示架上的可移动货架组成,客户可以在这里收集有关当地日常生活、房地产、建筑和室内设计的策划信息。工具出租角是墙壁的一部分,人们可以在移动时经常需要租用工具,如猴子扳手和锤钻,因此,随着业务的扩展,无标题展示墙可以以任何方式组成。



该项目面临的最大挑战是施工成本有限,因此,可用的成品材料被缩小成最便宜的,重新考虑使用胶合板和Galvalume等原始工业材料进行表面处理,原材料的粗糙感也可以通过木材和钢材的组合来缓解。透明的环氧涂层混凝土地板呈现生动的线条画,暴露的天花板由照明解决方案照亮,通过这些努力,“原始”就可以被定义为纯粹,而不是粗糙。

平面图:
Photos©️Hyung-suk Kang

