日本京都TODAY’S SPECIAL家居用品店铺设计
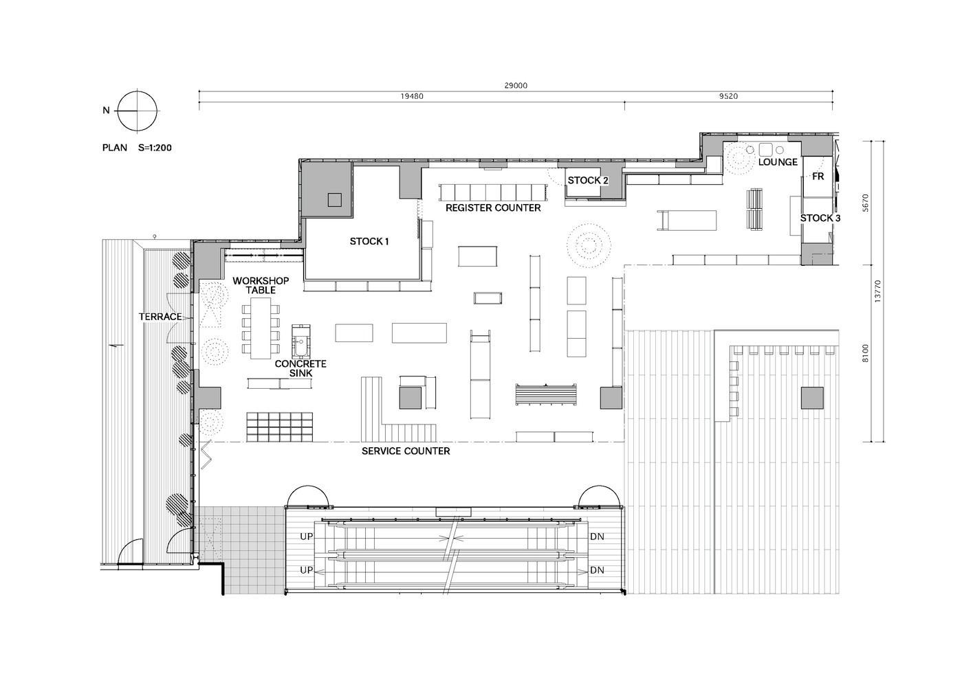
TODAY’S SPECIAL在日本京都开设了其第三家店铺(店中店)。设计基于“明亮”、“标准”和“DIY”的原始空间概念,使用包括木材、转炉钢架、木角家具、古董家具等各种家具,创造了一个客户可以自由流通的店铺空间。




随着不同的高度和深度,这家新店铺创造了一个古老的古董店的气氛,客户可以像玩狩猎游戏一样购物。



平面图:
©️Schemata建筑事务所
SOHO设计区网站改版进行中,给您带来不好的访问体验还请谅解。
输入关键词进行全文搜索