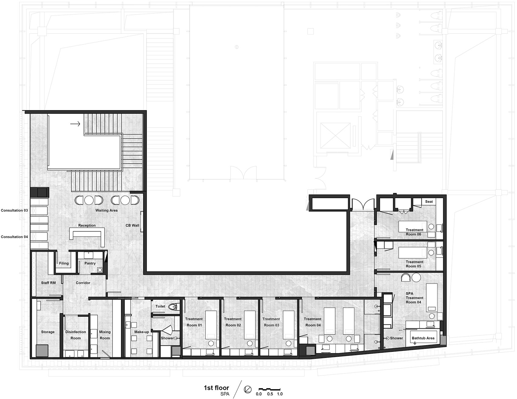
成都太古里MTM SPA门店
MDO所为香港护肤品牌MTM设计的全新理疗spa是一个由一座轻微弯曲的楼梯引入的隐秘宝地。这座坐落在成都太古里,占地400平方米的SPA有着两个主要功能。首层为零售空间,顾客可以通过MTM的咨询专家进行皮肤测试,并且得到定制护肤产品的推荐。

二层为宽敞的理疗区域,顾客可以在这里进行面部理疗和按摩。作为MTM品牌在中国的形象代表,MDO对这座新门店的概念设计强调了该品牌以科学研究和私人订制为核心的服务观念。基于品牌的日本起源,门店全新的视觉风格多采用中性色,并运用具有精致细节的天然石材和木材,突出了门店的空间感和边界感。

零售和理疗这两个服务功能在竖直方向分开。主题楼梯成为一个边界,和一个规划开放/私密,快/慢,疗养/spa空间的过渡区域。顾客沿着楼梯向上时,天花依次折叠,隐藏的上射灯照亮了墙面,营造出一个温暖舒适的氛围。第二层的空间单纯地被地灯照亮,这些地灯轻轻掠过墙面的底部,为顾客创造出一种禅意的体验,带领他们远离城市的喧嚣和繁忙。

分析图:
©️MDO

