北京·铃木食堂(丽都店) / 余留地
“铃木食堂”是诞生于北京历史核心区的生活品牌,已经成为胡同复兴运动中最具持久性的标志之一。自2010年创立至今,“铃木食堂”已经超越最初的餐厅功能,而发展成为包含精品咖啡,零售,以及画廊在内的文艺集合体。通过定期举办展览和工作坊,吸引了来自中国和日本的大量艺术家,设计师和手工艺人。从2012年开始,余留地与品牌紧密合作,在六个环境各异的社区里创造出别具一格的空间。
临近著名798艺术区,铃木食堂丽都店位于住宅社区的底层裙房。该街区正因为缺乏吸引人的租户和沉闷的建筑风格而陷入萧条。设计的主要目标是创造一个市集般的目的地,从而成为欢聚的场所,并给邻里注入活力。


外立面由深灰色调的特制织物所覆盖, 经过特殊处理的表面散发着金属般光泽。像所有铃木食堂的店面设计一样,余留地团队坚持发掘传统材料的潜力,通过改进施工工艺,使新空间恰如其分的置身场所文脉之中,同时又呈现引人好奇的特质。

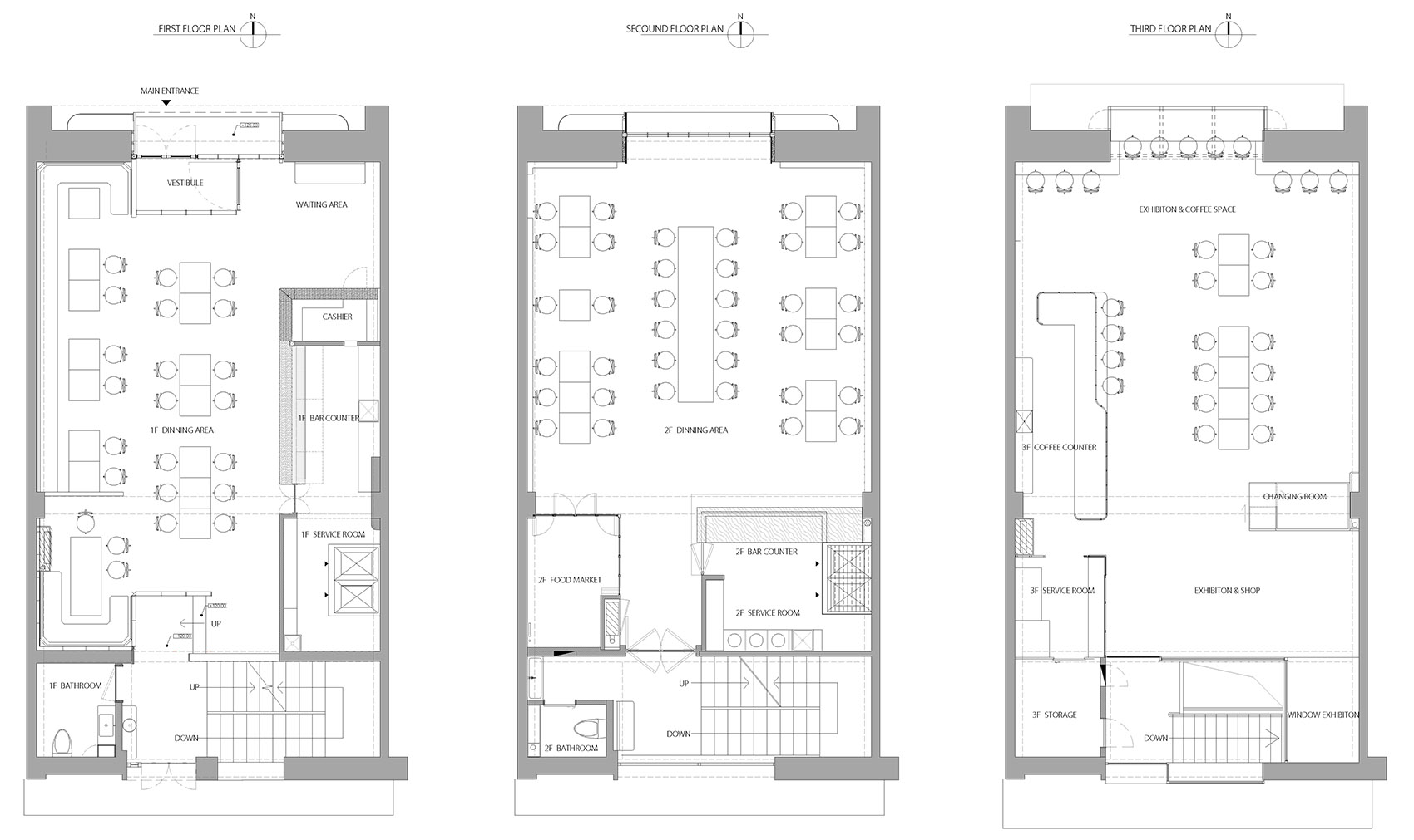
一楼的开放就餐区被若干私密的角落所环绕。整个空间的焦点是一个亭式结构的轻饮吧台,同时连接着位于楼下的厨房。悬置在抛光混凝土天花下的定制灯架由黄铜管连接,照映着白色调的马赛克地面和暖色调的木质桌椅。设计团队通过在原有墙体层叠的粉刷表面进行雕凿,产生出斑驳的白色浅浮雕效果,仿佛降雪后的北方山峦。



访客可以从通往二层的楼梯间看到社区内部的花园和儿童活动场。占据二层的是一个阁楼般的空间。通过具有拥抱感的木墙围和轻巧的金属灯架系统,创造出一种节日般的气氛。两个附属功能,定制厨房和食物商店,被可滑动开启的门扇定义为房间里的房间。

三楼包含咖啡店,零售和小型展览空间。平面可根据需要自由调整,仿佛一个隐世匠人的工作坊。南北两侧都设置开窗,为频繁举行的活动和展览提供充分的采光和通风。咖啡吧台由整张铝板制作,为三楼多变的室内布置提供简洁明亮的背景。

“有差异的归属感”是余留地团队在设计丽都店时追求的核心价值,这也贯穿于过去六年工作室为铃木食堂设计的各家分店。通过对有限空间的精心规划和传统材料的创造性处理,每一家铃木食堂都分享着令人熟悉难忘的亲和感。而对于街道景观“显而不张”的回应,铃木食堂为其根植的每一个地点带来新鲜的特质和期待。

项目分析图:
©️余留地

