北京·雁舍餐厅(APM店) / 古鲁奇
故事Story雁舍—顾名思义—大雁的家。一语双关,也暗指人们的栖息生活的场所。大雁归巢,游子回家。大雁归巢是雁之本能,游子回家是人之本性。这就是“雁舍”名字的由来。也许您并不了解雁舍,只要您来到这里就一定能感受到她的温暖,她的真诚。在设计之初我们就为雁舍确定了清晰的风格定位。



作为传统湘菜,雁舍怎么能从厚重的文化中“摆脱出来”?也许摆脱这个词用的并不恰当,但确实有很多传统的东西深陷文化的泥潭而不能自拔。湘菜也同样面临着这个问题,怎样把雁舍的湘菜发扬光大?那就只有创新,环境设计也是皆同一理,雁舍想要在环境上有所突破那就是要摆脱符号化的设计。


用空间来表达文化,用空间来改变人的生活方式,这才是设计,这才是我们要解决的问题。本案的平面是一个矩形场地。完美的场地并没有给设计师带来设计灵感,越没有矛盾的空间就越难找到设计的切入点。房子和树是雁舍的视觉语言,即使找不到设计突破口我们也不能用粗暴的视觉手法来解决问题,我们希望能用空间来表达更深远的意义。



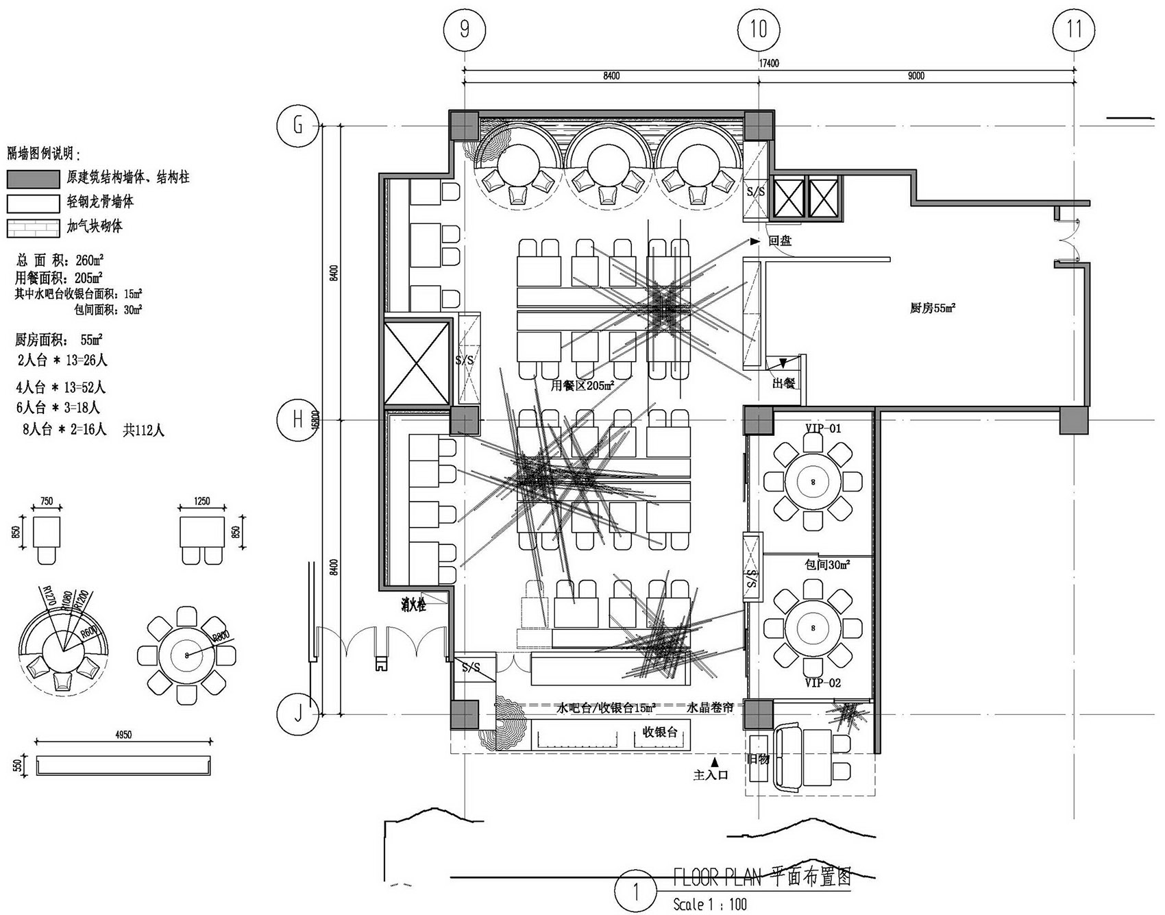
中国人自古以来就有内敛的性格,炎黄子孙向来是一支勤劳善良的民族,所以从秦朝以来我们不断地建设万里长城来防御异族的入侵,那么无论是万里长城,还是故宫紫禁城,乃至四合院,空间上都是一种围合的内向型空间(当然四合院从气候有防止风沙的作用)。雁舍的场地结合功能正好符合四合院的空间特点。吧台的设计代表倒座房,后面的三组圆卡座代表正房,左边的两组长卡座代表着西厢房,右边的厨房和两个包间代表着东厢房。很多的事情都是可遇而不可求,那么雁舍的空间设计就偏偏遇上老北京四合院,那么院子中间的几棵树便成了空间的点睛之笔。




项目分析图:

©️古鲁奇建筑咨询有限公司

