北京三里屯·“Beast野兽派与Little B”生活方式空间
“Beast野兽派”与姐妹店“Little B”在北京三里屯太古里的外立面设计灵感来源于美国艺术家Josef Albers的抽象绘画。提取了他作品中的表现形式,探求色彩和造型之间微妙的关系,我们从硬边艺术(Hard Edge)所传达的视觉表现力中汲取灵感,配合以Second Layer的结构语言,层层递进望过去,每一层都能表达不同的性格与先锋的态度。元素和方块没有图形与背景之分。形成了视觉意义的抽象。

一楼外立面整体柔美而硬朗,由紫色开始渐变到粉色最后来到LITTLE-B的姜黄色。层层渐进的色彩关系,连接了两个姐妹店也区别了两个姐妹品牌,使得整个外立面统一而富有层次变化。配合灯光的表现,整个外立面像一个漂浮在空中的发光盒子,成为整条街上的视觉聚焦点,层层叠进的黄色玻璃从空间的角度上重新演绎了硬边艺术。

一楼室内继承延续了外立面的先锋语言,Miss B珠宝区使用了大胆的粉紫色对撞;在细节上运用不同材质的对比碰撞,破碎石材与金属;拥有历史记忆的老木壁炉与玻璃灯管的结合再创作。配合通体粉色的旋转楼梯以及转角处的花艺珠宝,打造出如梦如幻wonderland。相邻的LITTLE B继承了一直以来的金属基因,我们在原来的基础上增加了彩色软木来中和空间,多了一些俏皮暖色。在整体的空间规划上,打通了两者间的隔墙,缩短了姐妹品牌的距离,让人可以自由穿行在两个相同摩登基因但是不同风格的空间里。

再创作是我们在这次设计里一次大胆的体验,将回收的老木壁炉带去工厂随机切割,将“记忆”封锁在透明玻璃盒子中,配合灯管,形成一种明显的新与旧的对比。

二楼的咖啡区保留了野兽派以往的基因,#优雅,#古典,#冷静,又融入了一些超现实的元素,在空间规划上层层围绕与分割,重新定义了一个新风格,与一楼形成鲜明对比。沿着超大旋转楼梯一路向上的过程仿佛在平行空间的穿梭通道里行走,走进另一个全新的空间里,就像电影《午夜巴黎》一样,让我们“误入”上一个黄金年代,电影质感的肌理与配色,我们希望在这里可以感受光,感受“情景感”,进行一场“过去”下午茶。

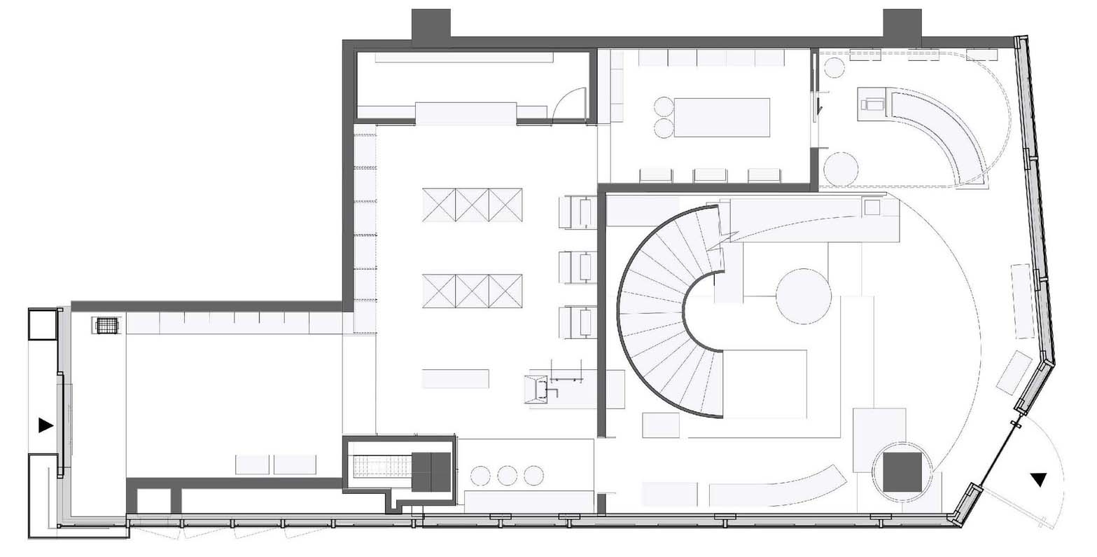
平面图:

项目空间信息:
- 空间名称:“Beast野兽派与Little B”生活方式空间
- 空间类型:商业空间、复合空间、零售空间、网红店
- 空间地址:北京市三里屯太古里南区1层
- 设计公司:Sò studio
- 空间面积:245平方米
- 空间主材:钢化玻璃、肌理涂料、压纹钢板、拉丝不锈钢、铁艺
- 空间摄影:林山影相

