成都·“Scenery” 住宅改造设计 / 谢秉恒
正如柯布西耶所说:”住宅是居住的机器”,是一个使用品,更是一个实用品。无论是几人居住,本质上是轻松的、方便的、实用的存在,在居住过程不需要费心费力的去讨好它,而是让它为你提供服务。这是位于四川成都的一处私宅公寓,屋主为单身独居的女生,屋主爱好烘焙、咖啡、舞蹈,衣服鞋物较多,拥有大大的储物间和功能完善的衣帽间,总是在家中办公,同时也希望在家中完成自己跳舞的爱好和健身运动的习惯。偶尔开火做饭,以中餐为主,喜欢做咖啡招待客人,家里常聚餐,餐厅是家中重要的社交空间,喜欢简单、轻松、自然的居住环境,希望居住空间可以是和朋友们舒适小聚的场所,可以在露台的地方种植花草和植物,也观赏也陶冶自己,在夏天的时候,也能在阳台上无烟烧烤,有一个自己的浴缸,可以偶尔泡在水里思考人生,需要收纳强大的柜子和书架,家里随处都可以一杯咖啡一杯书,公共空间绝对的开阔,卧室需要绝对的安静,没有光可以肆意吵闹一个忙起来天天失眠的自己。
▼改造后,开放的起居空间
–原始的户型是一个常见的板式二居室,可以满足基本的入住条件,但是无法承载屋主的居住需求。
– 空间封闭,采光差,功能区域呈一条直线分布,餐厨区域面积过小且闭塞,无法与访友互动。
– 户型格局单一,很难满足屋主舞蹈、烘焙、咖啡、工作、社交等一系列要求,也无法满足藏书、衣物的功能性储存需求。
– 主卧室位于面外区域,户外临街,环境嘈杂、夜晚车辆来往、灯光繁复,对睡眠质量不好的业主很不友好,同时临街睡觉对于心理的安全感也大打折扣。
– 卫生间太过狭小且位处房屋里端,自然是没办法满足女孩子拥有一个极度舒适安全且不沉闷的泡澡环境。
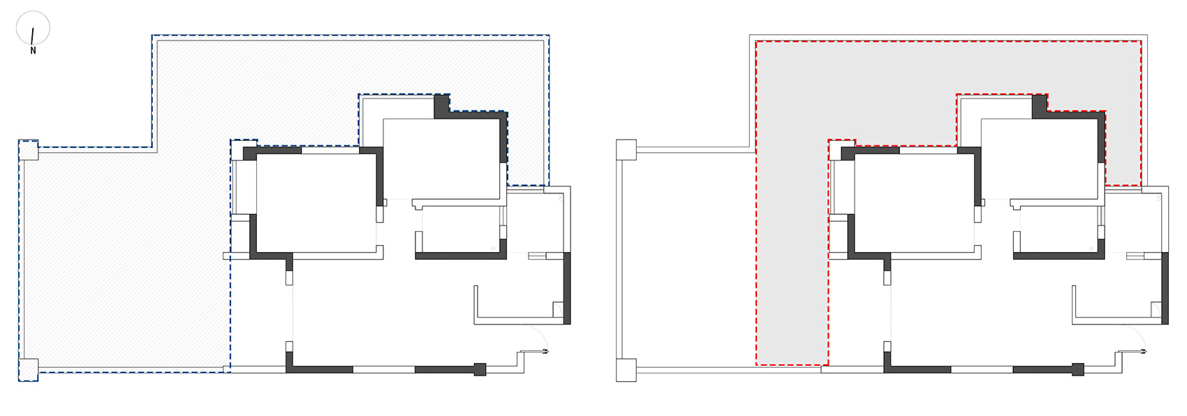
房屋自带了一个大露台(左图蓝框范围),这个露台的存在看似可以满足客户对于植物、户外聚会休闲的需求,但是整个露台区域事实上是和室内空间完全剥离的,没有做到室内外的有机结合。右图红框范围为物业允许扩展区域。
▼露台与扩建

– 让原本闭塞的两房一厅商品房改造为开阔、采光充沛、景观丰富的独居休闲住宅。
– 将主卧室打开作为多功能室并纳入公共区域,使空间开敞、通透。
– 原始户型的客厅作为社交型厨房,满足业主咖啡、宴请等诉求,同时让舞蹈与工作的需求在多功能室中达成。
– 将原来的卫生间缩小,只保留盥洗和便溺功能,形成一个独立的马桶间。
– 扩大原本的次卧室,将睡眠区移至靠内侧的区域,远离外面的街道,营造一个更加安静、更具有安全感的睡眠环境。
▼拓展区域

扩大原始建筑边界,将起居室、浴室、衣帽间等设施拓展到露台并同室内结合,释放室内空间,补充原始户型的功能格局。分别在房屋的东侧和南侧设置景观区。将浴室、多功能区、卧室、衣帽间围绕南侧景观区展开;起居室、多功能区、浴室围绕东侧景观区展开。原本的单朝向格局变为了双朝向,让室内室外有机结合、互相产生对话关系,视线丰富。
▼空间对话关系

玄关&厨房 | Entry&Kitchen
整个玄关采用木盒子的做法,与西厨厨柜相交,玄关左侧为一排通顶储物柜。
▼玄关&玄关小窗

玄关右侧设置换鞋凳,换鞋凳上方开出一扇小窗,让玄关与厨房发生对话关系,玄关厨房互相借视,也给昏暗的玄关引入一点点厨房的光亮,互相支撑和成就。中厨趋于简单、易用、满足功能性。
▼厨房

餐厅 | Dining
餐厅的设置是整个房屋的核心,是心脏一般的位置,空间开阔,视野丰富;东侧临起居室,正前方对景南侧景观区;烤箱上浮现出对面景观区的植被;透明的亚克力桌腿搭配一整条的原木,简单又特别,营造出神秘的悬浮感。从玄关进入房屋,原本的客厅改作为西厨+餐厅,在这个区域实现多场景的对话关系。餐厅一边连接起居室,一边连接集工作、舞蹈、休息一体的多功能区,向外延伸则是观景台。从餐厅回看入户,玄关与中厨分列两侧,餐厅同时也连接着中厨,以保证餐厨间的直线距离;餐厅与西厨的结合,是满足业主烘焙、咖啡等爱好的场所,同时也承担社交厨房的功能;厨房前的储物柜是对储物空间的补充,柜后隐藏一扇移门,拉出后可以封闭整个厨房,屋主爱好做川味菜,所以单独设置了一个隔间,重油重烟都被隔绝在内。餐厅视线开阔,东侧看向起居室与露台,可以令屋主在和朋友聚餐的时候一边准备茶点一边同朋友们进行交流;
▼空间概览

▼看向入口玄关

正前方直直看向南侧景观区,正前方的窗户形成了南向景观区的取景框,独自一人在家使用餐厨,可以一边喝着自己做好的咖啡一边看向远处的景观,不再是一个人闷在封闭空间中自顾自的做事。
▼开放餐厅

餐厅西侧与入户转换区相邻,正前方与多功能区对话。背后有功能强大的西厨做支撑,满足业主烘焙、咖啡的需求。
▼餐厅细部

造型上全部使用内凹代替外凸,尽一切办法让室内空间线条干净利落,减少不必要的凸出与材质转换,在保证室内干净、放松的前提下,才能凸显出室内外的空间对话。
▼橱柜细部

公共区域 | Public area
▼多功能区

多功能区内部格局呈双排布置,左侧为工作台,右侧为书架,既满足业主办公的需要,也满足业主大量藏书的诉求,中间位置开敞出来,用于业主运动、舞蹈。多功能区与餐厅产生对话,远端瞥见入户玄关, 书架与玄关形成两个”木盒子”,构成结构的张力。书架采用横纵板咬合的制作方式,横宽纵窄,突出力量感。
▼多功能区的书架

在多功能室摆上一把单人沙发,这里也可以是一个人休憩阅读的角落。
▼通过推拉门看多功能室

▼多功能室

▼窗户正对东侧景观区

无论是工作加班、休息阅读还是跳舞运动,都能被两侧的景观包围,增添了一丝轻松休闲。多功能室后面设置的转换区通往马桶间和主卧室。悬挑书桌前的窗户控制比例,让光线进入室内变得秩序。窗户前方正对东侧景观区,让窗户形成第二个取景框,坐在椅子上视线刚好可以透过取景框看向户外。光线的进入需要得到控制,视线的散发也同样需要控制,压缩视线的范围反而可以聚焦更丰富的场景。
▼悬挑书桌前的窗户控制比例

暗藏了两扇内嵌式拉门,平时隐藏在柜体背后,拉出来可以将区域作为一个隔间使用, 移门的正面是木饰面,背后设置了镜面,一个独立的舞蹈室应运而生。为移门定制的G形拉手,相比门内反弹器、反弹拉手,G形执手保证移门的使用一步完成,不需要多余的动作。
▼定制的G形拉手

起居室 | Living Room
利用原本室内外的落差为起居室设置两级台阶,为进入起居室营造一种”拾阶而上”的仪式感。沙发侧旁的木盒子内藏有大量的储物空间,同时墙根也采用脱缝的做法,用内凹代替外凸,保持线条的一致性。
▼起居室

▼两级台阶营造仪式感

马桶间 | Toilet
原来的卫生间缩小,只保留盥洗和便溺功能,形成一个独立的马桶间,相较于传统干湿混合的一体浴室,马桶单独分离更加满足业主的诉求,也方便客人的使用。马桶背后的墙体开出一扇小窗,可以让昏暗的马桶间引入一点点来自生活阳台的光线, 侧旁的开放格方便存取物品。
▼卫生间

使用人造石一体台盆和墙出水龙头,保持整体的干净与秩序;同时为墙面设置功能强大的镜柜。马桶间地材和户外过道地板的分缝线藏在门中线下,地材拼接采用1mm分隔条。
▼细部

卧室 | Bedroom
将原来临街的卧室移到了更靠内的区域,保证卧室的静音与避光,尽可能令屋主可以安稳睡眠,为女性业主保障休息时的安全感;同时为卧室配套功能强大的衣帽间与面积充裕的浴室。从床尾的台阶分别走向通往浴室的通道和衣帽间。
▼卧室

拾阶而上,一处是储物量丰富的衣帽间,一处是通往浴室的走道。
走廊 | Corridor
主卧与走廊间使用一扇隐藏式拉门作为隔断,当需要安静睡眠、不想光线渗入的时候,只需关上拉门、拉起衣帽间的窗帘,即可在黑暗包裹的安全感中入眠。打开隔断门,走廊映入眼帘,远处是一个隐秘的浴室。躺在床上,视线也可以到达此处,透过走廊或者衣帽间的窗户,瞥见户外的景观,视线开阔且丰富。
▼走廊可见户外的景观

走廊正对浴室浴缸,两侧均为玻璃隔断,左侧可以看到室内休闲厅,右侧可以看到景观,仿佛就是园林的景观走廊。
▼走廊两侧为玻璃隔断

移门采用线形导轨,保持顶面的干净利落。
▼主卧与走廊间的隐藏式拉门

浴室 | RestRoom
泡澡这么享受的事情当然要视线舒适,强调浴室与景观的对话,把浴缸的区域放置在两个景观区的连接处,浴缸背后为户外的走道,紧邻东侧景观区和南向景观区,一扫沉闷的感觉。
▼浴室与景观对话

浴缸与淋浴地材采用抗污亚克力制成,抗菌抗污、易于打扫。
▼浴室细部

在浴室放松万身心后,再经走廊折回,在景观环绕的走廊慢慢走回到卧室。
户外 | OutDoor
从客厅走到户外,户外墙面全部采用古柚木制作,耐腐蚀、有时间感;地材使用竹钢,这是一种四川本土材料,既有竹的韧性又有钢的刚性。有一条通往南侧景观区的小径,小径临着书桌的窗户,走在小径,走过东景观区、路过浴室。
▼从户外看浴池

转径走到南侧景观区,隔壁邻居的柚子树伸出了一点枝丫,阳光透过树枝洒在地面上,形成一些斑驳的光影;于是,完成了室内外的对话串联,也满足了业主对于植物的热爱。
▼景观走廊

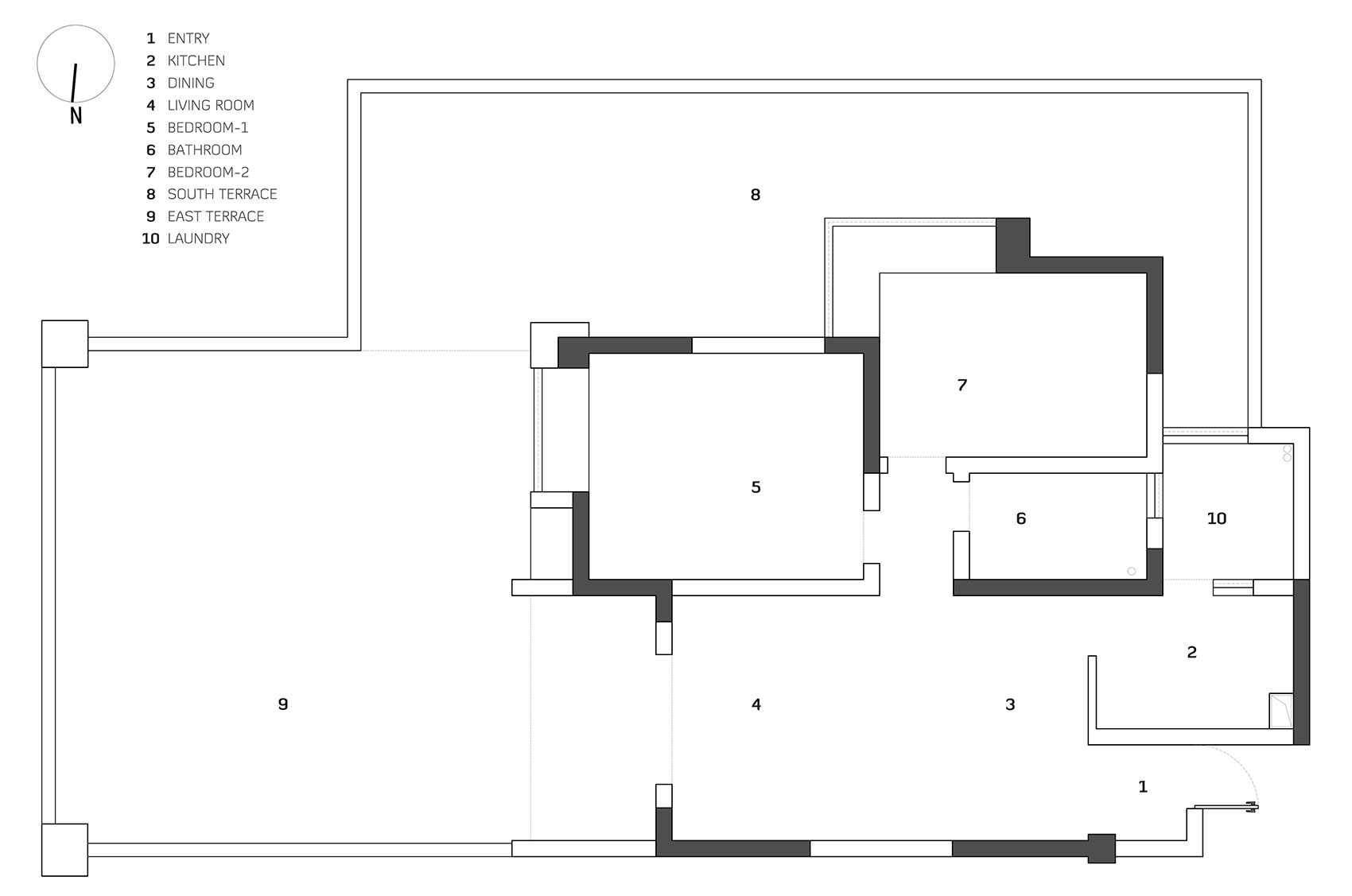
▼改造前平面

▼改造后平面

▼立面图


▼节点大样

项目空间信息:
- 空间名称:“Scenery”住宅改造
- 空间类型:住宅空间、平层住宅
- 空间地址:四川省成都市
- 设 计 师:谢秉恒
- 建筑面积:室内120平方米+室外56平方米
- 空间品牌:Ugan Concept感物地板、Ligne Roset写意空间、JANGE简集定制
- 空间主材:木材、木地板、玻璃、白色乳胶漆、人造石、瓷砖、古柚木、竹钢
- 摄影版权:季光、形在空间摄影 Here Space 贺川
编辑版权©️SOHO设计区(sohodd.com),禁止以“SOHO设计区”编辑版本进行任何形式转载,如转载请注明转自“SOHO设计区网站”。

