福州·“滨江私宅”LOFT设计 / 大成
初见业主是在一次音乐嘉年华,再次遇见是在艺术家沉克龙的工作室,看大漆作品,也聊到生活和空间,之后便约着上山看房子。后来造一处山间居所因缘搁浅,但她们的缘分就此开始。一起在假期出去走走家具买手店、复合空间,看展,闲闲聊天,这些相伴与交流带给设计师更多的深入,对业主来说,心中所喜也在这个过程里得到梳理,逐渐清晰,很快有了这处城中自在地。作为一位女性企业家,她在事业上已有一番积淀,这些年,开始更多投注于内在的修习,也在有意无意间寻找着事业与家庭之间的另一处空间。修一隅以安身心,也将一份安定与力量传递给家人、员工与客户,通过一方场域联结人与人。
原户型为两套相连商住Loft,设计师初访项目,印象里是一个四五米高的长方体水泥盒子,不同于普通住宅的空间结构,东、北两面落地窗,整体空间十分外放。再细看,窗户结构繁杂,入户区有很多障碍,半高平台、消防管道、排污管道,还有两个巨大的烟井。
▼休闲空间外围的独立动线

设计师重新梳理人与空间的关系。空间组织上充分尊重并优化原建筑的结构特质,保留双向落地观景,聚焦使用中业主的真实状态,精简生活功能,消融原始结构障碍,使各生活区间有机串联,于中心休闲区外围形成独立动线。
▼客厅,与厨房通过窗口形成联系

▼客厅一角的佛像


家居物件的选择和使用,也是选择不同的生活方式。晚归回家,第一时间打开那盏陪伴多年的落地灯,温柔的灯光下,倚靠在B&B沙石色沙发上,可以卸下一天的疲惫。每日清晨往往从U+打坐椅开始,午餐与友相聚,梵几的圆形餐桌坐下三五人,有着舒适的尺度。休息日,干脆将空间腾出,组织一场特别的家庭音颂会,颂钵声响起,体会到的是宁静的力量,明净的空间,允许每个人拥抱接纳内心。
▼空间概览,保留双向落地景观

▼安定身心的空间


▼沙发与茶桌

空间质感表达亦秉承简单但用心的思路,天然柚木温暖宜人,大面积的手工涂料裡融入的檀香木粉来自雕刻佛像时自然落下的木屑,赋予空间洁净、馨香。伴随远山城景与日夜光影,置身其中,边界消融,带给人的是眼、耳、鼻、触感、心意上的无声共鸣。弧线墙面柔和了整体空间,同时也保证了结构性和立体感。
▼圆形餐桌

厨房是业主心中重要的存在,被安置在生活区间的中点,设计师以一道弧墙,两扇移门,巧妙地将厨房置于动线之中,可开可合。下厨时,可以和窗外的亲友聊聊天,也可以关上门窗,在独立封闭的厨房中完成美味,却不耽误透过玻璃窗外静逸的空间感,享受到恰好的天光与远景。它像诺大空间中独立小屋般的存在,每当夜幕降临,灯光亮起,令人倍感温馨,也为这处休憩地带来了烟火气息。
▼厨房

楼道入口选择了一块青石,它经雨水冲洗产生柔和边缘,以坚固与体积感带来的第一个踏步,成为公共到私密空间递进的注解。楼道内部,缓和的顶部设计消融了界限感,地脚灯近似烛光的照明隐于墙洞,以质朴原始的方式,实现与公共区域的区隔,也为进入卧室空间进行了情绪氛围上的铺垫。
▼楼梯间入口

连接一二楼的楼梯,在一个内敛的空间内,出入口不同形状的洞口,带来空间转换的感知和气息流动。冬日午后,业主喜欢在茶桌前坐坐,一泡茶的时间,可以看着暖融融的阳光,在墙面和洞口形成的微妙空间感里映照出流光迭影,那些时刻,心是也被暖暖的照亮。
▼楼梯间

业主的一尊小型柴烧佛像艺术作品供置于二楼转角区,上行过程中,从仰视至视线慢慢与佛像平齐,现佛,还是观己,或许是一个问题。
▼转角处供奉佛像

休息空间在二楼无窗的南向,通过设计解决了层高的限制,保证了采光视野通风。阅读的时候,抬眼可以俯瞰江面,休息时,拉上窗帘,又是质朴的阁楼小屋模样,恰到好处的高度比例反而带给人安定和隽永。
▼卧室

▼卧室中的休闲区

▼卧室细部

入住后,更多的生活体验在这里发生。业主越发觉得这是一处让她“知止”的空间,虽然设计有丰富的收纳空间,自己却并不会轻易带回更多物件,就算是收藏来的书画心头好,也会思忖再三。人和空间的关系或许就是这样,构建空间的过程,也整理了我们自己,我们进入一个空间,也允许了它塑造我们的身心。
▼夜景

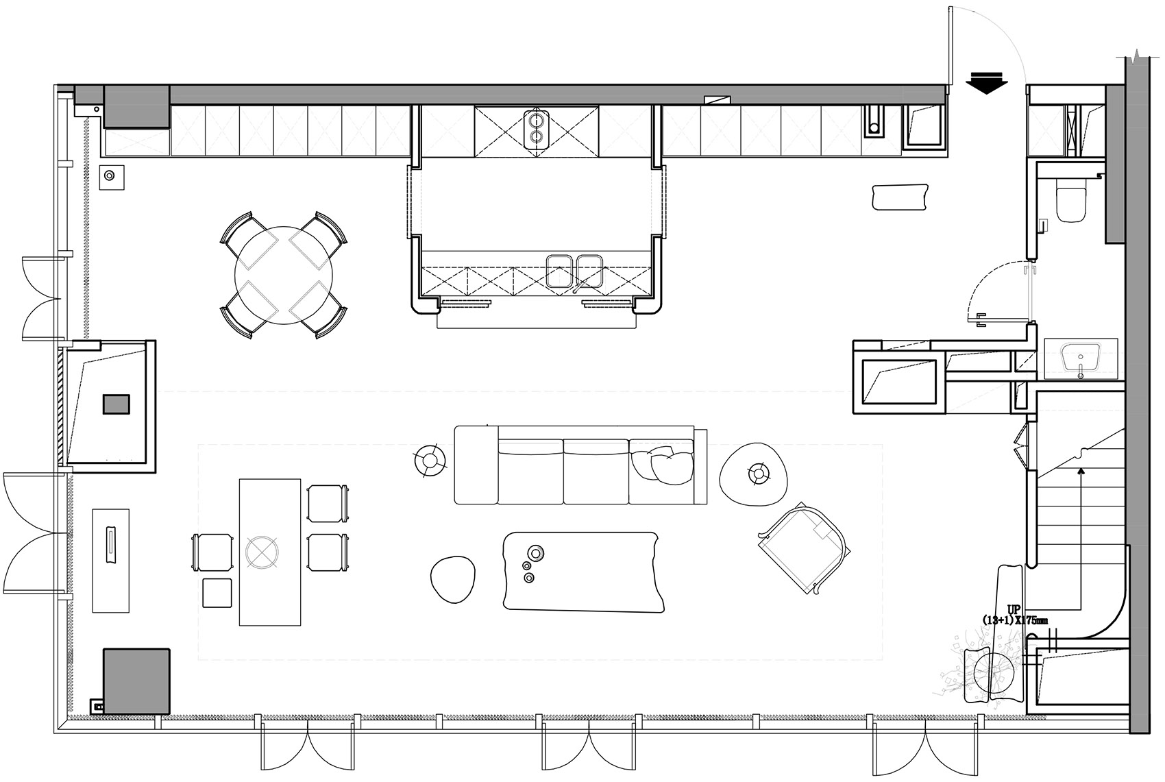
▼一层平面图

▼二层平面图

项目空间信息:
- 空间名称:“滨江私宅”LOFT公寓
- 空间类型:住宅空间、LOFT
- 空间地址:福建省福州市
- 设计公司:DCD 大成设计
- 设计总监:游佳
- 施工单位:精匠门装饰
- 建筑面积:145平方米
- 空间主材:木地板、木材、艺术漆、玻璃、金属
- 摄影版权:偏方摄影
编辑版权©️SOHO设计区(sohodd.com),禁止以“SOHO设计区”编辑版本进行任何形式转载,如转载请注明转自“SOHO设计区网站”。

