上海·POST OFFICE办公社区设计 / 木斗
Post office 联合办公社区坐落于上海市静安区昌平路上的一栋老建筑大楼里,木斗设计团队通过提取品牌的内在精神特质,以“街道中的信箱”的设计理念展开,平面空间的布置部分,在满足基本办公与社交需求的基础上,用灵活有趣的动线规划描述了复古的邮递空间场景感。提供了创新变通的办公环境,从而取代传统静态办公。并且打破老式复古概念工作间,用全新的设计结构美学来诠释的活力与艺术气息。
▼设计灵感:建筑空间如纵横交错的街道

电梯厅
Elevator hall
电梯厅通过釉面复古砖与原木色的巧妙配合,保留了原有墙面的粗糙表皮。形成一个故事性的场景。
▼电梯厅

▼粗糙的墙面和logo

▼材料细部

前台接待
Reception
前台接待区采用复古的邮局绿饰面包围与现代不锈钢信报箱形成对比,流动着空间的趣味性。采用大面的复古绿与纯净白色配合使整个办公空间流动着生机盎然,我们希望从感知和自然方面去提升工作效率并改善办公质量。办公室的需求空间与品牌所强调的特色办公空间相互结合,将室内氛围变成一种独立品牌的元素,消解了使用者对建筑结构的认知。在空间之间建立起对话交流,留下充满神秘的探索感。
▼接待区

▼绿色饰面与不锈钢信箱

▼信箱细部

▼走道

▼茶水间

会议室
Conference Room
会议室空间在平面空间布局上与前厅接待形成一个围合的气氛空间。
▼前台背面的会议室

▼会议室细部

办公空间
Work space
家具选用了经典耐用的款式目的是为了突出空间的简洁实用性,当步入动线清晰的空间,参观者能够很快的关注到空间本身。使用者存在于空间的场景之中,动线的变化功能的转变,使空间真正发挥其作用。
▼设置简洁家具的办公空间

▼单独的工作区

▼走廊&卫生间

▼办公氛围

▼分解轴测图:
▼接待区和会议室轴测图

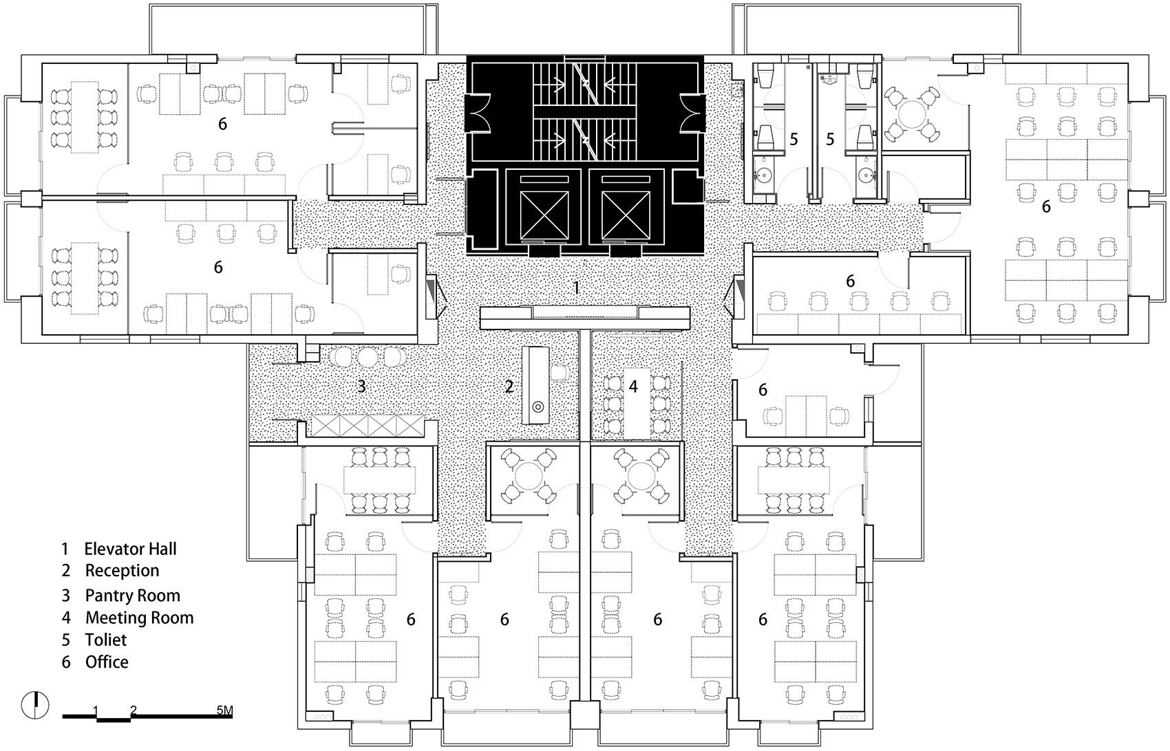
▼平面图

项目空间信息:
- 空间名称:POST OFFICE 办公社区
- 空间类型:办公空间、联合办公
- 空间地址:上海静安区昌平路
- 设计公司:Woodo Studio(木斗设计)
- 主创设计:王卫、冯婷婷
- 设计团队:陈加鸿、李家琳
- 建筑面积:450平方米
- 空间主材:绿色木饰面、釉面复古砖、拉丝不锈钢、瓷砖、涂料
- 摄影版权:郭靖
- 项目业主:POST OFFICE
编辑版权©️SOHO设计区(sohodd.com),禁止以“SOHO设计区”编辑版本进行任何形式转载,如转载请注明转自“SOHO设计区网站”。

