上海·“小火柴瓷砖”零售展厅设计 / 栖斯
材料展厅地址:上海市闵行区芦恒路
项目背景
互联网新零售品牌正面临后疫情经济与低碳经济双重挑战。线下空间体验、易循环等成为新零售的关键词。作为典型的新零售建材品牌,小火柴瓷砖也面临同样的问题。他们新展厅的场地位于一栋地上三层、地下一层的建筑内。建筑外部被玻璃砖包裹,采光优良。内部空间秩序混乱、缺乏记忆点。

设计概念
栖斯没有优先考虑陈展功能,而是在有限的预算内着力打造空间的包容性、辨识度以及场所精神。栖斯针对每层场地的特点,以高效的空间构形策略建立起秩序。该策略旨在利用基本的空间形式操作,在尽量少的空间干预下营造丰富的体验。此外,栖斯平衡了固定要素与易循环要素的比例,使展厅呈现独特的个性与美感。栖斯在有限的资源内为当下的建材零售空间提供了一种可行范本。
▼概念手绘:

展厅一层
栖斯用三个盒体整理了首层空间。一个长条形的盒子从室内延伸至室外。起入口引导与内外过渡的作用。栖斯利用灯阵的节奏隐藏了入口上方的梁,让长条形盒子内外连贯。包裹建筑核心筒的盒体容纳了水吧、展示、收纳、导视等功能并且统筹了杂乱的界面。铺满瓷砖的盒子通过隐形门隐藏了后方的内部办公空间。盒体之外则保持场地原始状态,贯彻最小化干预的策略。梳理后的空间变得清晰、简明且极具辨识度。
▼一层空间构形分析:


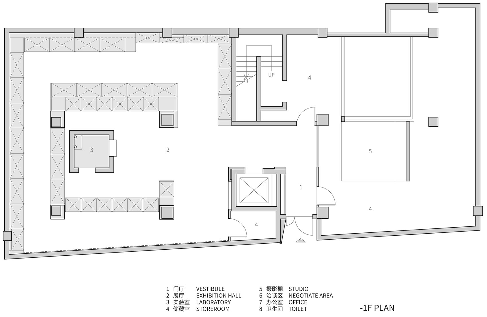
展厅负一层
从负一层入口进入场地后首先会经过一段走廊。左侧是高密度瓷砖展区,右侧是产品拍摄区和仓库。产品拍摄过程对外展示。这将建材与摄影艺术进行了嫁接,激发了顾客的好奇心也同时表达了品牌方的坦诚。
▼负一层轴测图:

高密度展区的空间构形策略是:以空间中部的四根结构柱为边界,设置内外两层展区。再通过展台与墙面构造共同建构空间比例系统。中部的盒体是用于瓷砖样品检测的实验室。盒子的落位偏离中心,用于兼顾不同视点的视觉体验。
36个成品展架均从原展厅搬来进行二次利用。栖斯将展架排列成组,并在外侧包裹木作统一形态。台面的方格用于归置样块。强烈的秩序有助于统筹不同风格的瓷砖。这也让人联想到首饰、化妆品展柜,增加顾客对建材的亲切感。

展厅二层
栖斯以占据中部空间的一排斜钢柱为线索,将承载瓷砖展品的片墙环绕中部区域布置。路径穿过展墙,形成了阵列的门洞。每两个门洞之间的空间形成一个独立的展区,用于展示相同类型的产品。当顾客看完一个类型的展区,前往下一展区时会穿过门洞。门洞被刻意压低,强化穿行的感受。虽然每个展区间隔很近,但是门洞加强了各展区的独立性。
▼负一层轴测图:

瓷砖展架由外覆阳光板的方钢搭建。轻与重产生了有趣的对比。展架采用装配式安装,便于使用周期结束后的回收以及重复利用。展架的尺寸根据瓷砖模数设置,便于灵活陈展不同的产品。这一基本元素构建出一个秩序、灵活、包容的空间系统。

展厅三层
品牌方对三层的定位是通过实景展示瓷砖三维铺贴的效果。栖斯利用顶层的层高优势,用盒体、台阶、平台构建出一个微型街区系统。“街区”这一空间原形既能陈展也能被用作品牌发布、沙龙以及商业拍摄等。这有别于样板间式的陈展方式。样品瓷砖被有机的安排在“街区”各处,形成了一个超现实乌托邦。人穿行其中获得自由观察的体验。
▼三层空间构形分析:

▼平面图:

项目空间信息:
- 空间名称:“小火柴瓷砖”零售展厅
- 空间类型:商业空间、零售空间、体验空间、零售展厅、材料展厅
- 空间地址:上海市闵行区芦恒路
- 设计公司:栖斯设计
- 设计团队:陈茜茜、傅翀、单仁杰
- 建筑面积:1000平方米
- 空间主材:瓷砖、木饰面、不锈钢、阳光板、微水泥、软膜天花、人字纹钢板
- 合作品牌:小火柴瓷砖、仙人掌照明
- 摄影版权:吕晓斌
编辑版权©️SOHO设计区(sohodd.com),禁止以“SOHO设计区”编辑版本进行任何形式转载,如转载请注明转自“SOHO设计区网站”。

