厦门·“BASAO tea”茶饮空间(白鹭洲公园店) / Neutra Architects
茶饮店地址:厦门市思明区白鹭洲东路6号楼61号;人均消费:60元/人
白鹭洲公园位于厦门市中心,是重要的市民休闲场所,环绕公园的筼筜湖原与海相通,现为内湖。项目场地正位于临湖坡地之上,两个单体呈L形布局,共同面对平台上的小叶榄仁及筼筜湖景,四周植被环绕。这样的场地条件带来的是城市尺度的包含景观、建筑、室内的多重空间。

我们从西方哲学获得灵感,在本项目中尝试以“闲暇”来破题。亚里士多德在《政治学》中提到:“游嬉是为了更好的劳作,劳作是为了闲暇。” 这里的语境是,古希腊人以闲暇来度量生活,工作在他们看来,只是非闲暇。并且闲暇与游嬉有层次上的区别,游嬉就相当于逃离工作的休闲娱乐,而闲暇是在说以一种沉静的状态去观照和倾听这个世界。由此看来,“闲暇”的概念是对于“界限”概念的更高理解。这个时候,人本身就是目的,界限不再以消极的形态展现。

由此,在本项目中凸显闲暇这个概念,在理论层面上是去积极反思自然、人、商业空间之间的关系,旨在突破一般的逃避庸常、制造审美乌托邦的商业空间的思维桎梏。
在设计实践上则去寻找场地潜力、设计者主观心境与品牌内核的结合点,以界限——闲暇为出发点,塑造更具丰富内核的,以动态永恒之美吸引大众的商业空间。

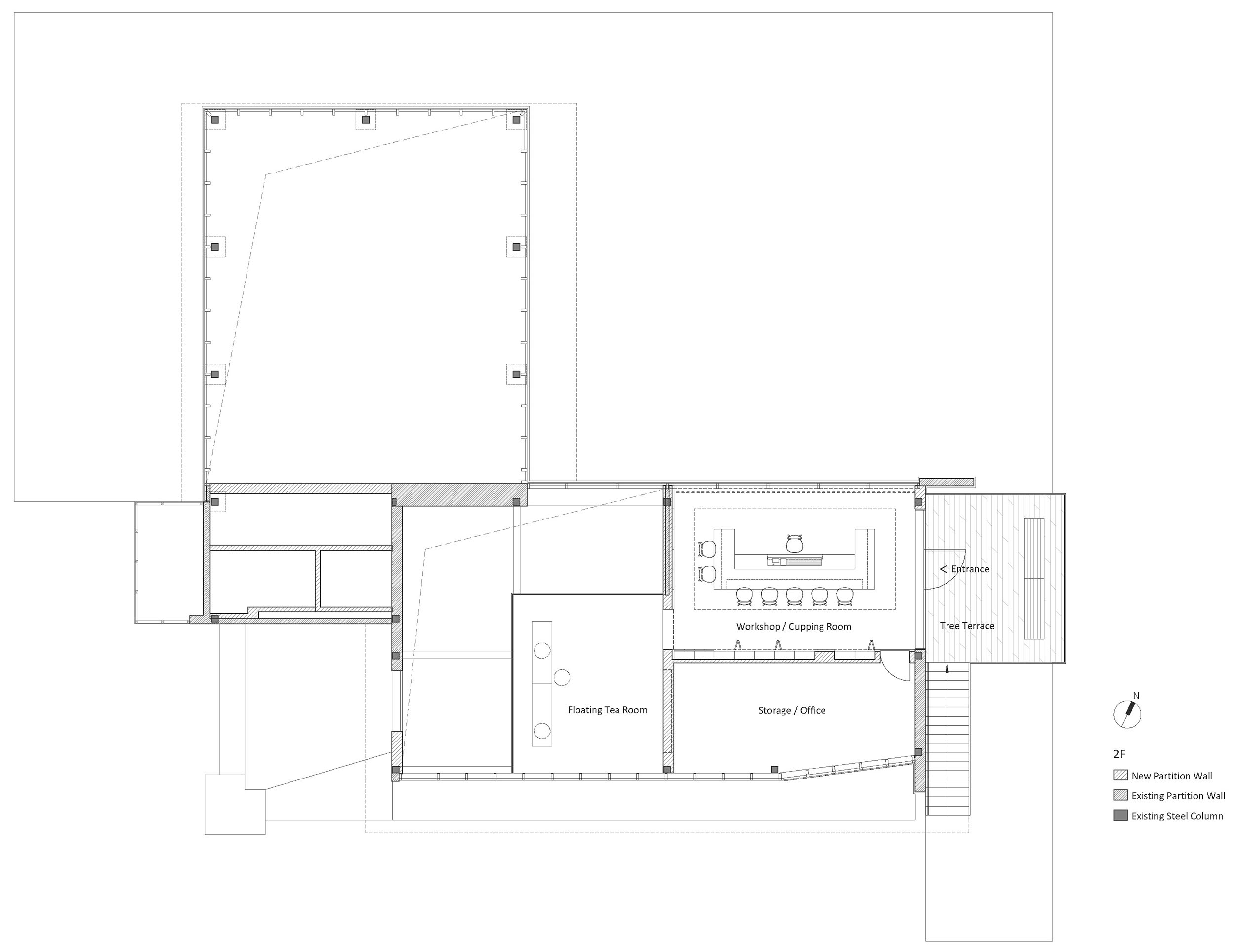
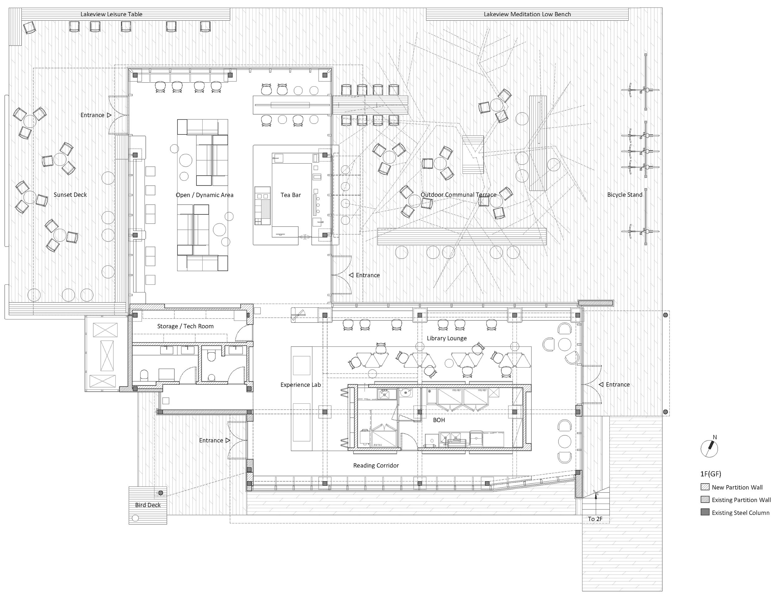
以适于闲暇的空间为基调,设计从考察各空间元素之间的相对关系入手。我们分析了场地与周边环境的宏观关系,梳理了场地边界可能产生的不同意义,结合作为注重心灵体验的茶空间的品牌内核,设置了不同层次的区域。一个是室内外连通的动区,这种人与景观充分互动的感觉,由穿透室内外的吧台、共享长桌与室外长凳围绕小叶榄仁所带来。以动区为核心扩散开来,层高较为低矮、景观面不多的,我们规划为静区,它结合了茶体验,产品与书籍陈列以及阅读长廊。夹层区域则适于深度体验工夫茶。

▼概念手绘:
▼平面图:

项目空间信息:
- 空间名称:厦门·“BASAO tea”茶饮空间(白鹭洲公园店)
- 空间类型:餐饮空间、品牌茶饮店、中式茶饮、茶空间、下午茶店
- 空间地址:厦门市思明区白鹭洲东路6号楼61号
- 人均消费:60元/人
- 设计公司:Neutra Architect
- 主创设计:赵子涵、叶清
- 施工单位:厦门市翰禹装饰工程有限公司
- 木作配合:乔弘(厦门)木业有限公司
- 金属配合:金鸿源不锈钢
- 照明设计:Ehome和光照明
- 场地面积:700平方米
- 建筑面积:340平方米
- 空间主材:钢网、大理石、瓷砖、木饰面
- 摄影版权:光弦Studio
- 项目客户:BASAO佰朔
编辑版权©️SOHO设计区(sohodd.com),禁止以“SOHO设计区”编辑版本进行任何形式转载,如转载请注明转自“SOHO设计区网站”。

