厦门·“小獾XIAOHUAN”复合餐饮店 / Emotion Architects
餐厅地址:厦门市思明区七星西路17-105号;人均消费:75元/人
小獾XIAOHUAN位于厦门市思明区,集咖啡,餐食,沙龙,蛋糕培训于一体的复合餐饮店。空间以老木板、玄武岩等更为自然的材料为空间铺陈,空间的留白也为日后陈设、活动提供更多的可能性。

整个建筑的采光面我们尽可能地给到人流活动区,空间的立面刻意中空留白不做完全的封闭,因此270度的玻璃在早中午的时间段给了空间不同的光影层次体验。


本次以土屋光逸的画作为设计概念参照画中的光影感,呈现以结构与材质、光影。为了让空间能到达到业主对多重功能的利用,我们在设计上减少装饰技法的堆叠,更多的是用结构去解构空间合理化动线基础,装饰的减少使客户能更加关注到产品本身。

空间里切分数幅框景,有玻璃的地方我们都延长了窗框深度,顾客随时随地都可落座融入窗景,来往的车流、晴雨交替、绿叶秋落,行人也好店内顾客也好都是画中的一部分,是独属小獾的细腻。在能望见海的城市,搬来臆想中的群山与深林。

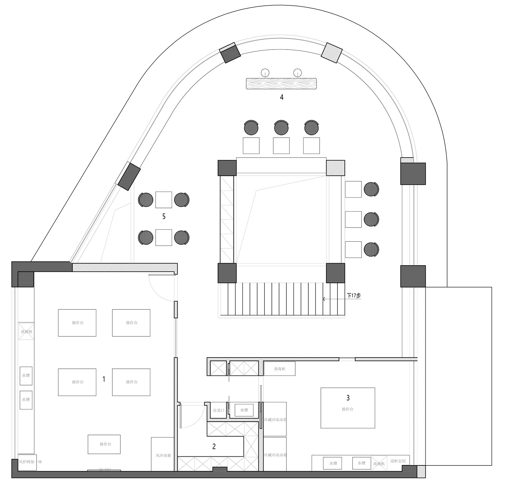
▼平面图:

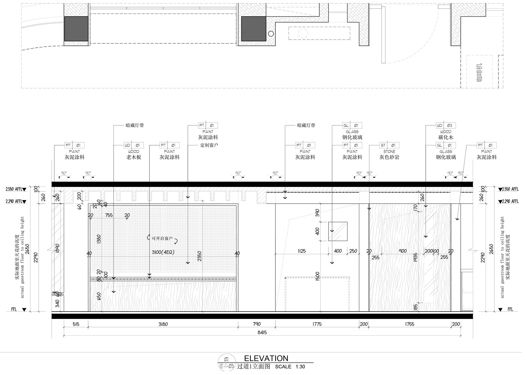
▼立面图:

项目空间信息:
- 空间名称:“小獾XIAOHUAN”复合餐饮店
- 空间类型:餐饮空间、复合餐饮店、咖啡简餐店、下午茶店
- 空间地址:厦门市思明区七星西路17-105号
- 人均消费:75元/人
- 设计公司:Emotion Architects
- 设计团队:陈燃、李震宇
- 施工单位:良承壹景工程公司
- 建筑面积:360平方米
- 空间主材:老木板、海洋板、灰泥(贝莱维斯涂料)
- 摄影版权:WM STUDIO
编辑版权©️SOHO设计区(sohodd.com),未经许可禁止以“SOHO设计区”编辑版本进行任何形式转载,
(包括且不限于:媒体、网站、公众号等),如转载请注明转自“SOHO设计区网站”。所有项目照片/设计图形版权归原作者所有。
本站部分内容源自网络公开资源或用户分享,如若侵犯了原作者的合法权益,可联系我们进行处理。

