北京·“合影小院”民宿设计 / DK大可
民宿地址:北京市通州区唐大庄村152号;消费参考:包院4000元/天
项目位于北京市通州区台湖镇唐大庄村内,环球影城的开放是项目地块重获新生的先决条件。委托方在该村选址相近的两处老房子加以改造运营。因两所房子同属一个甲方,设计与施工同时间进行,在此将按照一个项目介绍。我们受到委托后希望此次项目能够创造出朴素简约的空间而非简单堆砌的空间样式。疫情的肆虐也让我们重新考虑设计在大环境下应当以什么样的方式呈现并且会对生活产生更加积极的意义。

项目本身属于改造范畴因而不涉及场地本身的复杂性,我们的目的是将委托方的经营功能需求与设计空间进行最大化的衔接。合影小院位于村落东南部,项目基础为三间坐北朝南的正房与15米乘10米的大院,但是作为民宿项目缺少厨房、餐厅、儿童活动等基础公共空间,且三间主卧规模较小。委托方期望在此可以满足一个大家庭及亲朋好友的使用,同时又能满足互不认识保证其私密性的不同租户使用。


限制条件则成为了我们本案的设计出发点,让居者融于自然,让阳光重塑空间成为设计的核心。沿街建筑外立面以白色雕塑般的几何造型进行整合,与乡村肌理形成鲜明的对比,入口处隔栅的设计取代了大面玻璃确保建筑的隐私。


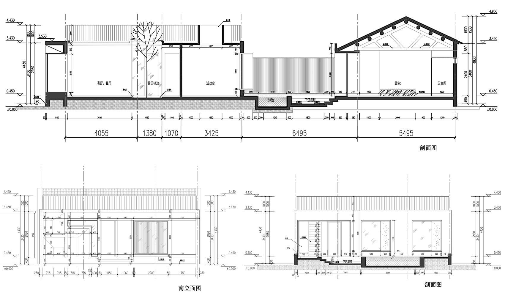
我们复原被拆除的南倒座作为公共空间,保留5米乘10米的公共院落作为开放空间与私密空间的衔接,院落中布置泳池、沙坑及滑梯满足儿童户外空间的需求。 公区内设置了一个种植树木的玻璃天井,其顶部是自然光的进口。设计限定了自然光的形态,自然光动态的特性则赋予了空间形态的变化。



空间设计中我们通过各个局部设计串联起整体的空间秩序,各个局部之间的联系共同组合成空间存在的价值。创造出一个积极的场所空间是我们立足当下的责任。红影小院位于合影小院正东20米,基于同样的逻辑和认知目标进行设计。
原址为房东闲置的储物空间,主房为双坡屋顶,房间内部梁下净高2.3米,占地东西10米,进深4.5米,院落与主房面积相同。建筑虽坐北朝南但三面相邻其他住户,所以主入口只能设置在西侧,并且紧邻村落支路。进深小、净高低、采光差、私密性不足是此处改造面临的几个问题。

红色的门头设计强调了项目作为民宿经营的引导性,在保证了居住者私密性的同时也为整体灰色调的村落置入一抹生机。建筑内采用大面玻璃将室内空间进行延展,低矮通铺木床增加卧室视觉高度。以白色主色调补充室内采光不足的缺陷。院落则规划成挑高3.6米净高的公共区域用以承载厨房、餐厅、客厅等功能所需。客厅部分做成下凹式固定座椅,卧室、餐厅与客厅形成了三个高差,将小面积多功能的属性发挥到最大。西向的主入口利用通廊式的门头顺势将入口方向调整为北向,这样既增加了入户的仪式感也解决了道路直冲入口的私密性问题。

▼平面图:
▼剖面图:

项目空间信息:
- 空间名称:合影小院民宿
- 空间类型:酒店民宿、民宿设计、老房改造民宿
- 空间地址:北京市通州区唐大庄村152号
- 消费参考:包院4000元/天
- 设计公司:DK大可建筑
- 设计团队:杨玺琛、王域沣、王学艺、刘思源
- 施工公司:唐山悦富装饰工程有限公司
- 合影小院:占地面积243平米
- 合影小院:建筑面积171平米
- 红影小院:占地面积114平米
- 红影小院:建筑面积114平米
- 空间主材:铁艺、瓷砖、木饰面、钢化玻璃、涂料
- 摄影版权:金伟琦
编辑版权©️SOHO设计区(sohodd.com),禁止以“SOHO设计区”编辑版本进行任何形式转载,如转载请注明转自“SOHO设计区网站”。

