广州·口口目科技传媒概念工作室 / RBA|Urban Object
自2018年“国潮元年”至今,中国本土创意 – 本土制造已经掀起了此起彼伏的自信浪潮,迸发出了前所未有的消费热情,这是疫情新时代下,“制造业高质量发展”的奠基与“人们追求美好生活”的期愿,所碰撞出的火花。口口目,一家在国产女鞋行业内深耕几十年的本土潮流领军品牌,借助其强大制造生产能力,已经开始思考本土元素,自主创意研发,以及当下新媒体的结合运用,探索前行转型。

▼分析图:

而如何在600平方的高维立体空间内实现新潮品的幕后办公,设计,研发,制作,展示,新媒体宣发这一系列自由而有序的发生,URBAN设计师尝试交出这样一份可能性。
▼集办公,设计,研发,制作,展示,新媒体宣发于一体的高维立体空间

▼展陈区

▼空间中视觉的交互

与传统街铺不同需求不同,工作室需要承载更大比例的闭门研发生产的实际使用需求,与传统车间不同,概念工作室又承担了一定比例的招待,拍摄的可能。白色,是一个没有距离且无法被定义的色域,中性,中立,自成态度但没有疏离,用白色接纳不同元素,不同互动,不同可能。
▼研发制作区

▼汇报展示区

▼空间细部

▼摄影区

▼白色营造出中性,中立,自成态度但没有疏离的空间氛围
 
  
 
看似自由,实则有序,体块组织动线,视线串联场地。前端的意见反馈与后端的研发调整是否可以最大效率得到双向传递,决定了一个潮流品牌能否精确且快速的掌握当下创意热点。
▼办公区

▼办公区细部

▼具有科技感的走廊

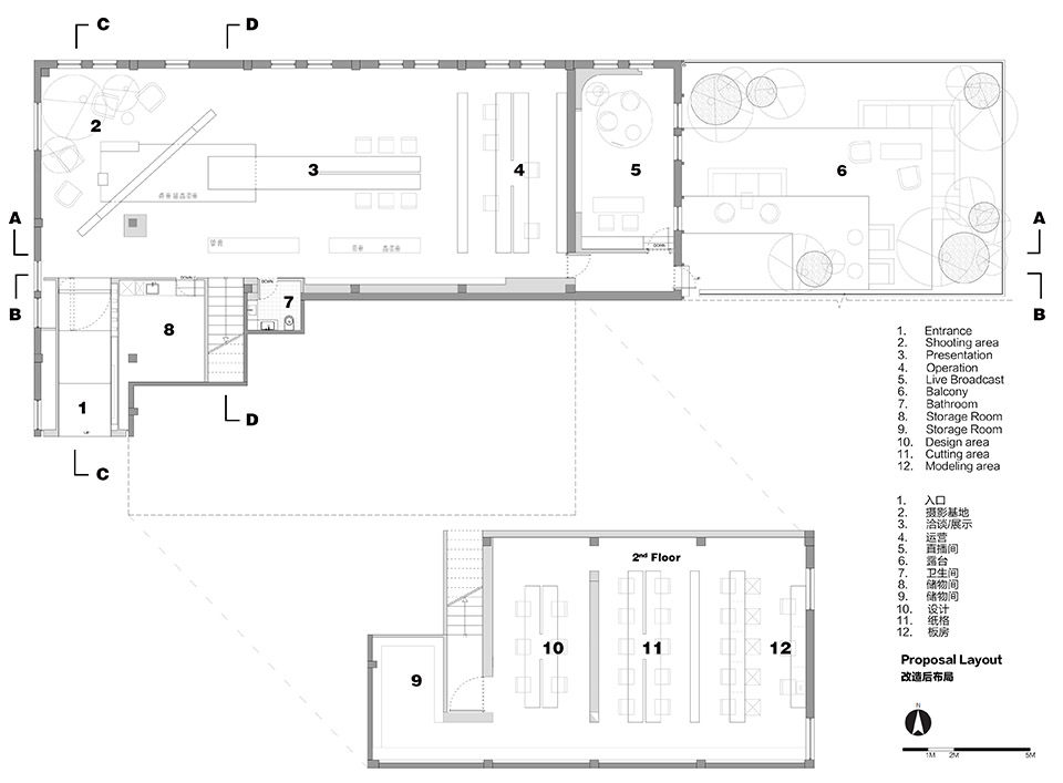
▼平面图:

▼剖面图:
 
  
 
项目空间信息:
- 空间名称:口口目科技传媒概念工作室
- 空间类型:办公空间、科技公司办公室、工作室设计
- 空间地址:广州市荔湾区
- 设计公司:RBA|Urban Object
- 设计团队:Ruggero Baldasso,Evelyn Chen,Andrea Pasqua, 湛柱坚,梁祖儿
- 空间面积:600平方米
- 空间主材:拉丝不锈钢、自流平、乳胶漆
- 摄影版权:姚朝辉
编辑版权©️SOHO设计区(sohodd.com),禁止以“SOHO设计区”编辑版本进行任何形式转载,如转载请注明转自“SOHO设计区网站”。

 
		 
			 
			 
			 
			 
			 
			